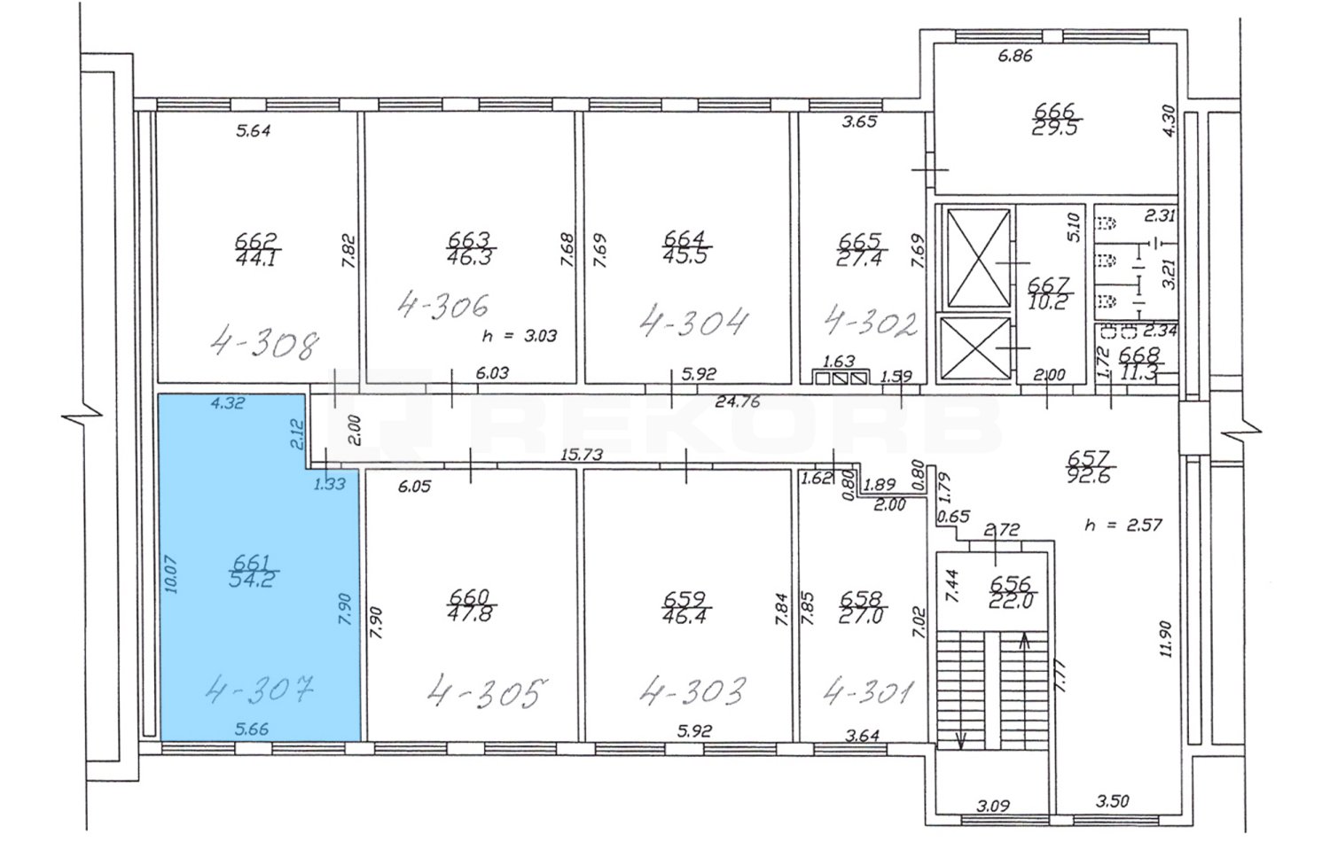
Офис в аренду 54 м2 Помещение №888523

Класс B
Класс БЦ
54 м2
Площадь
3 из 8
Этаж
Кабинетная
Планировка
Свободно
Статус

БЦ Афонская 2 корп. 2 предлагает в аренду помещение 54 кв.м. на 3 этаже здания класса B. Напрямую от собственника и без комиссии.

Помещение расположено в Приморском районе Санкт-Петербурга и находится в непосредственной близости от метро Удельная. При БЦ организован паркинг на 450 машино-мест, к зданию также легко добраться на общественном транспорте.

Инфраструктура бизнес-центра: Банкомат, Кафе и Отделение банка

Офис 54 м2

  • Электричество отдельно
  • Уборка оплачивается отдельно
  • Коммунальные услуги включены
  • OPEX включен в ставку
  • Включая НДС