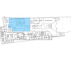
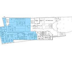
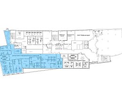
Бизнес-центр «Apollo»

Класс A
класс БЦ
2006 г.
построен
8 353 м2
общая площадь
7 этажей
этажность
52 места
паркинг
10 000 руб./мес.
машино-место

БЦ Apollo

Добролюбова пр. д. 8
Петроградский район, ИФНС №25
  • м. Спортивная
    9 мин.
  • м. Горьковская
    18 мин.

Рекомендуем также помещения в других БЦ

А что делать, если не найти идеальный офис?
Мы готовы вам помочь!
Выберите критерии интересующего вас помещения. Наши специалисты в ближайшее время направят вам список объектов, максимально подходящих под параметры поиска, с полной коммерческой информацией.
Подбор помещениязаказать бесплатно
Отправить ТЗ
История арендыБЦ «Apollo»