Снять офис 350 кв.м.

Офис в Санкт-Петербурге 321 кв.м. Фото №
Класс A
Офис в Санкт-Петербурге 321 кв.м. Фото №
Офис в Санкт-Петербурге 321 кв.м. Фото №

2 500 за м2 + электричество и уборка
БЦ Преображенский двор, Литейный пр. д. 26, лит. А
  • м. Чернышевская
    11 мин.

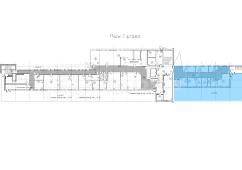
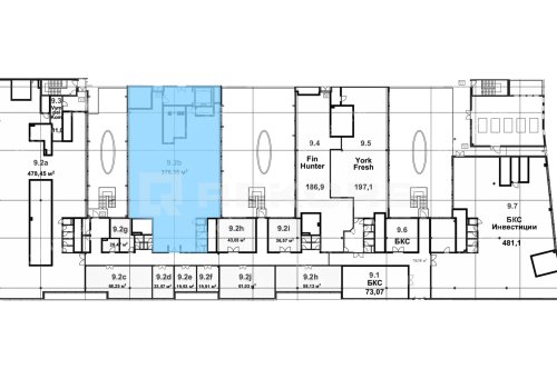
Офис 321 кв.м. на 6 этаже здания класса A. Напрямую от собственника и без комиссии. В стоимость включены КУ и OPEX. Отдельно оплачиваются электричество и уборка.

Сдается помещение в Спб 340 кв.м. Фото №3
Класс A
Свободно с 01.05.2026 г.
Сдается помещение в Спб 340 кв.м. Фото №3
Сдается помещение в Спб 340 кв.м. Фото №3

2 500 за м2 + электричество и уборка
БЦ Преображенский двор, Литейный пр. д. 26, лит. А
  • м. Чернышевская
    11 мин.

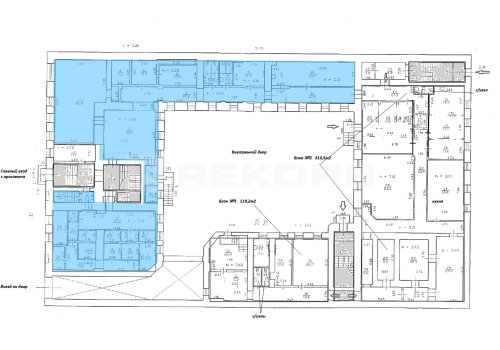
Сдается помещение 340 кв.м. на 2 этаже здания класса A. Прямая аренда, дополнительные проценты и комиссии отсутствуют. В стоимость включены КУ и OPEX. Отдельно оплачиваются электричество и уборка.

Предлагается помещение в Спб 360 кв.м. Фото №3
Класс B
Предлагается помещение в Спб 360 кв.м. Фото №3
Предлагается помещение в Спб 360 кв.м. Фото №3

1 000 за м2 + КУ, OPEX, электричество и уборка
БЦ Miller, пр. Испытателей д. 37
  • м. Комендантский проспект
    7 мин.

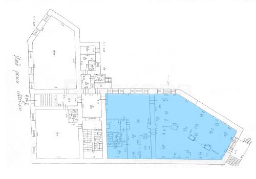
Предлагается помещение 360 кв.м. на 3 этаже здания класса B. Прямой договор, дополнительные комиссии отсутствуют. Отдельно оплачиваются КУ, электричество, OPEX и уборка.

Офис в Спб 369 кв.м. Фото №3
Класс B+
Офис в Спб 369 кв.м. Фото №3
Офис в Спб 369 кв.м. Фото №3

Стоимость по запросу
Стоимость по запросу
БЦ 2-я Советская 17, 2-я Советская ул. д. 17, лит. А
  • м. Площадь Восстания
    7 мин.

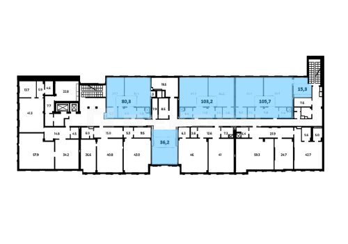
Офис 369 кв.м. на 2 этаже здания класса B+. Напрямую от собственника и без комиссии. В стоимость входит КУ. Отдельно оплачиваются электричество, OPEX и уборка.

Предлагаем офис в Санкт-Петербурге 368 кв.м. Фото №3
Класс B+
Предлагаем офис в Санкт-Петербурге 368 кв.м. Фото №3
Предлагаем офис в Санкт-Петербурге 368 кв.м. Фото №3

Стоимость по запросу
Стоимость по запросу
БЦ 2-я Советская 17, 2-я Советская ул. д. 17, лит. А
  • м. Площадь Восстания
    7 мин.

Предлагаем офис 368 кв.м. на 4 этаже здания класса B+. Прямой договор, дополнительные комиссии отсутствуют. В стоимость входит КУ. Отдельно оплачиваются электричество, OPEX и уборка.

Помещение в Санкт-Петербурге 323 кв.м. Фото №3
Класс B+
Помещение в Санкт-Петербурге 323 кв.м. Фото №3
Помещение в Санкт-Петербурге 323 кв.м. Фото №3

2 500 за м2 + уборка
БЦ Левашовский, Левашовский пр. д. 12
  • м. Чкаловская
    9 мин.

Помещение 323 кв.м. на 2 этаже здания класса B+. Прямая аренда от собственника, без посредников. В стоимость включены КУ, электричество и OPEX. Отдельно оплачивается уборка.

 в Санкт-Петербурге 399 кв.м. Фото №3
Класс B+
Свободно с 01.09.2026 г.

2 500 за м2 + уборка
БЦ Левашовский, Левашовский пр. д. 12
  • м. Чкаловская
    9 мин.

399 кв.м. на 7 этаже здания класса B+. Прямой договор, дополнительные комиссии отсутствуют. В стоимость включены КУ, электричество и OPEX. Отдельно оплачивается уборка.

Помещение в Санкт-Петербурге 316 кв.м. Фото №1
Класс B+

2 145 за м2 + уборка
БЦ Выборгская Застава, Большой Сампсониевский пр. д. 68, лит. Н
  • м. Лесная
    14 мин.

Помещение 316 кв.м. на 2 этаже здания класса B+. Напрямую от собственника и без комиссии. В стоимость включены КУ, электричество и OPEX. Отдельно оплачивается уборка.

Предлагается помещение в Спб 389 кв.м. Фото №1
Класс A
Предлагается помещение в Спб 389 кв.м. Фото №1
Предлагается помещение в Спб 389 кв.м. Фото №1

2 500 за м2 + электричество и уборка
БЦ Veda House, Петроградская наб. д. 20, лит. А
  • м. Горьковская
    15 мин.

Предлагается помещение 389 кв.м. на 3 этаже здания класса A. Прямой договор, дополнительные комиссии отсутствуют. В стоимость включены КУ и OPEX. Отдельно оплачиваются электричество и уборка.

 в Санкт-Петербурге 375 кв.м. Фото №3
Класс B+
 в Санкт-Петербурге 375 кв.м. Фото №3
 в Санкт-Петербурге 375 кв.м. Фото №3

2 300 за м2 / все включено
БЦ Башкировъ, Синопская наб. д. 52, лит. А
  • м. Площадь Александра Невского-I
    16 мин.

375 кв.м. на 5 и 6 этажах здания класса B+. Прямая аренда от собственника, без посредников. В стоимость включены КУ, электричество, OPEX и уборка.

Сдается офис в Спб 390 кв.м. Фото №3
Класс B
Сдается офис в Спб 390 кв.м. Фото №3
Сдается офис в Спб 390 кв.м. Фото №3

1 800 за м2 + электричество и уборка
БЦ Конногвардейский, Конногвардейский бульвар д. 4, лит. А
  • м. Адмиралтейская
    14 мин.

Сдается офис 390 кв.м. на 2 этаже здания класса B. Напрямую от собственника и без комиссии. В стоимость включены КУ и OPEX. Отдельно оплачиваются электричество и уборка.

Предлагаем офис в Спб 340 кв.м. Фото №3
Класс A
Предлагаем офис в Спб 340 кв.м. Фото №3
Предлагаем офис в Спб 340 кв.м. Фото №3

3 230 за м2 + электричество и уборка
БЦ Невский 68, Невский пр. д. 68
  • м. Маяковская
    8 мин.

Предлагаем офис 340 кв.м. на 4 этаже здания класса A. Напрямую от собственника и без комиссии. В стоимость включены КУ и OPEX. Отдельно оплачиваются электричество и уборка.

Предлагаем офис в Спб 369 кв.м. Фото №3
Класс B
Предлагаем офис в Спб 369 кв.м. Фото №3

1 575 за м2 + электричество
Лиговский 266 Е, Лиговский пр. д. 266, лит. Е
  • м. Московские ворота
    9 мин.

Предлагаем офис 369 кв.м. на 1 и 2 этажах здания класса B. Прямой договор, дополнительные комиссии отсутствуют. В стоимость включены КУ, OPEX и уборка. Отдельно оплачивается электричество.

Предлагаем офис в Санкт-Петербурге 313 кв.м. Фото №2
Класс A
Предлагаем офис в Санкт-Петербурге 313 кв.м. Фото №2
Предлагаем офис в Санкт-Петербурге 313 кв.м. Фото №2

2 000 за м2 + электричество и уборка
БЦ Oscar, наб. Фонтанки д. 13
  • м. Гостиный двор
    11 мин.

Предлагаем офис 313 кв.м. на 2 этаже здания класса A. Прямая аренда от собственника, без посредников. В стоимость включены КУ и OPEX. Отдельно оплачиваются электричество и уборка.

 в Санкт-Петербурге 359 кв.м. Фото №3
 в Санкт-Петербурге 359 кв.м. Фото №3
 в Санкт-Петербурге 359 кв.м. Фото №3

1 800 за м2 + уборка
БЦ Римского-Корсакова 47, Римского-Корсакова д. 47
  • м. Садовая
    18 мин.

359 кв.м. на 1 этаже. Прямая аренда, какие-либо дополнительные проценты и комиссии отсутствуют. В стоимость включены КУ, электричество и OPEX. Отдельно оплачивается уборка.

Предлагаем офис в Санкт-Петербурге 378 кв.м. Фото №3
Класс B+
Предлагаем офис в Санкт-Петербурге 378 кв.м. Фото №3
Предлагаем офис в Санкт-Петербурге 378 кв.м. Фото №3

1 700 за м2 + электричество и уборка
БЦ Мельник, ул. Профессора Качалова д. 7, лит. А
  • м. Площадь Александра Невского-I
    23 мин.

Предлагаем офис 378 кв.м. на 2 этаже здания класса B+. Напрямую от собственника и без комиссии. В стоимость включены КУ и OPEX. Отдельно оплачиваются электричество и уборка.

Офис в Санкт-Петербурге 328 кв.м. Фото №3
Офис в Санкт-Петербурге 328 кв.м. Фото №3
Офис в Санкт-Петербурге 328 кв.м. Фото №3

1 100 за м2 + КУ, электричество и уборка
Заречная 15к1, пос. Парголово, ул. Заречная д. 15, к. 1
  • м. Парнас
    17 мин.

Офис 328 кв.м. на 3 этаже. Прямая аренда, дополнительные проценты и комиссии отсутствуют. В стоимость входит OPEX. Отдельно оплачиваются КУ, электричество и уборка.

 в Санкт-Петербурге 345 кв.м. Фото №3
Класс C
 в Санкт-Петербурге 345 кв.м. Фото №3
 в Санкт-Петербурге 345 кв.м. Фото №3

1 200 за м2 + уборка
БЦ ИФХ Ленинец, Лиговский пр. д. 274
  • м. Московские ворота
    5 мин.

345 кв.м. на 2 этаже здания класса C. Прямая аренда, какие-либо дополнительные проценты и комиссии отсутствуют. В стоимость включены КУ, электричество и OPEX. Отдельно оплачивается уборка.

Предлагаем офис в Санкт-Петербурге 300 кв.м. Фото №3
Предлагаем офис в Санкт-Петербурге 300 кв.м. Фото №3
Предлагаем офис в Санкт-Петербурге 300 кв.м. Фото №3

1 740 за м2 + КУ, электричество и уборка
ОСЗ Тельмана 2, Тельмана д. 2
  • м. Ломоносовская
    26 мин.

Предлагаем офис 300 кв.м. на 1 этаже. Прямой договор, дополнительные комиссии отсутствуют. В стоимость входит OPEX. Отдельно оплачиваются КУ, электричество и уборка.

Офис в Санкт-Петербурге 376 кв.м. Фото №3
Класс A
Офис в Санкт-Петербурге 376 кв.м. Фото №3
Офис в Санкт-Петербурге 376 кв.м. Фото №3

2 880 за м2 + КУ, электричество и уборка
БЦ Невский Центр, Невский пр. д. 114-116, лит. А
  • м. Площадь Восстания
    1 мин.

Офис 376 кв.м. на 9 этаже здания класса A. Прямая аренда от собственника, без посредников. В стоимость входит OPEX. Отдельно оплачиваются КУ, электричество и уборка.

Помещение в Санкт-Петербурге 311 кв.м. Фото №3
Класс C
Помещение в Санкт-Петербурге 311 кв.м. Фото №3
Помещение в Санкт-Петербурге 311 кв.м. Фото №3

1 310 за м2 + КУ, OPEX, электричество и уборка
БЦ Рассвет, ул. Дегтярная д. 5-7
  • м. Площадь Восстания
    11 мин.

Помещение 311 кв.м. на 1 этаже здания класса C. Прямая аренда, дополнительные проценты и комиссии отсутствуют. Отдельно оплачиваются КУ, электричество, OPEX и уборка.

Офис в Спб 302 кв.м. Фото №3
Класс B+
Офис в Спб 302 кв.м. Фото №3
Офис в Спб 302 кв.м. Фото №3

3 050 за м2 + уборка
БЦ Ново-Исаакиевский, Якубовича д. 24, лит. А
  • м. Адмиралтейская
    16 мин.

Офис 302 кв.м. на 2 - 4 этажах здания класса B+. Прямая аренда от собственника, без посредников. В стоимость включены КУ, электричество и OPEX. Отдельно оплачивается уборка.

 в Санкт-Петербурге 386 кв.м. Фото №3
Класс A
Свободно с 01.05.2026 г.
 в Санкт-Петербурге 386 кв.м. Фото №3
 в Санкт-Петербурге 386 кв.м. Фото №3

2 928 за м2 + КУ, электричество и уборка
БЦ Невский Центр, Невский пр. д. 114-116, лит. А
  • м. Площадь Восстания
    1 мин.

386 кв.м. на 8 этаже здания класса A. Прямой договор, дополнительные комиссии отсутствуют. В стоимость входит OPEX. Отдельно оплачиваются КУ, электричество и уборка.

Предлагаем офис в Спб 384 кв.м. Фото №3
Класс C
Предлагаем офис в Спб 384 кв.м. Фото №3

959 за м2 + КУ, OPEX, электричество и уборка
  • м. Площадь Ленина
    13 мин.

Предлагаем офис 384 кв.м. на 3 этаже здания класса C. Прямая аренда, дополнительные проценты и комиссии отсутствуют. Отдельно оплачиваются КУ, электричество, OPEX и уборка.

 в Санкт-Петербурге 310 кв.м. Фото №2

1 890 за м2 + КУ и электричество
БЦ Моисеенко 22 лит И, ул. Моисеенко д. 22, лит. И
  • м. Чернышевская
    28 мин.

310 кв.м. на 1 - 3 этажах. Прямая аренда, какие-либо дополнительные проценты и комиссии отсутствуют. В стоимость включены OPEX и уборка. Отдельно оплачиваются КУ и электричество.

Предлагаем офис в Спб 323 кв.м. Фото №1
Класс C
Предлагаем офис в Спб 323 кв.м. Фото №1
Предлагаем офис в Спб 323 кв.м. Фото №1

900 за м2 + КУ, OPEX, электричество и уборка
БЦ Компонент Технопарк, Бестужевская ул. д. 10
  • м. Лесная
    31 мин.

Предлагаем офис 323 кв.м. на 4 этаже здания класса C. Прямая аренда, дополнительные проценты и комиссии отсутствуют. Отдельно оплачиваются КУ, электричество, OPEX и уборка.

 в Санкт-Петербурге 362 кв.м. Фото №3
Класс A
 в Санкт-Петербурге 362 кв.м. Фото №3
 в Санкт-Петербурге 362 кв.м. Фото №3

3 800 за м2 + КУ, электричество и уборка
БЦ Пассаж / Итальянская 17, ул. Итальянская д. 17
  • м. Гостиный двор
    6 мин.

362 кв.м. на 7 этаже здания класса A. Прямая аренда, дополнительные проценты и комиссии отсутствуют. В стоимость входит OPEX. Отдельно оплачиваются КУ, электричество и уборка.

 в Санкт-Петербурге 354 кв.м. Фото №3
 в Санкт-Петербурге 354 кв.м. Фото №3
 в Санкт-Петербурге 354 кв.м. Фото №3

3 500 за м2 + КУ, OPEX, электричество и уборка
БЦ Гороховая 47В, Гороховая ул. д. 47, лит. В
  • м. Сенная площадь
    2 мин.

354 кв.м. на 1 этаже. Прямой договор, дополнительные комиссии отсутствуют. Отдельно оплачиваются КУ, электричество, OPEX и уборка.

 в Санкт-Петербурге 305 кв.м. Фото №3
Класс C
 в Санкт-Петербурге 305 кв.м. Фото №3
 в Санкт-Петербурге 305 кв.м. Фото №3

750 за м2 + КУ, электричество и уборка
БЦ Тореза 68, Тореза пр. д. 68
  • м. Площадь Мужества
    24 мин.

305 кв.м. на 4 этаже здания класса C. Прямая аренда, какие-либо дополнительные проценты и комиссии отсутствуют. Отдельно оплачиваются КУ, электричество и уборка.

 в Санкт-Петербурге 350 кв.м. Фото №3
Класс C
 в Санкт-Петербурге 350 кв.м. Фото №3
 в Санкт-Петербурге 350 кв.м. Фото №3

1 800 за м2 + электричество и уборка
БЦ Северный Терминал, 1-й Верхний переулок д. 2
  • м. Гражданский проспект
    31 мин.

350 кв.м. на 9 этаже здания класса C. Прямая аренда, какие-либо дополнительные проценты и комиссии отсутствуют. В стоимость включены КУ и OPEX. Отдельно оплачиваются электричество и уборка.

Показать еще (всего 41 помещение)