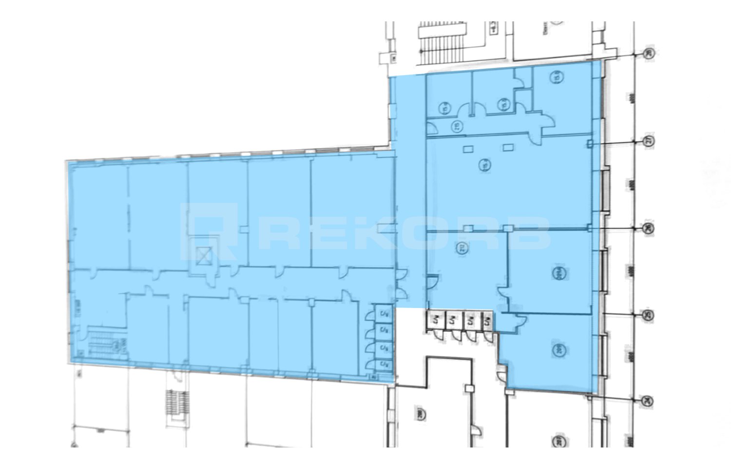
Офис в аренду 822 м2 Помещение №455102

Класс B
Класс БЦ
822 м2
Общая площадь
2 из 3
Этаж
Смешанная
Планировка
Свободно
Статус
Записаться на просмотр
Санкт-Петербург, Приморский район, Коломяжский пр. д. 10, лит. Д
  • Пионерская
    11 минут пешком

Условия

  • Коммунальные услуги оплачиваются отдельно
  • Электричество оплачивается отдельно
  • Уборка оплачивается отдельно
  •  
  • OPEX включены
  • УСН

Описание

Деловой центр Мост предлагает в аренду помещение 822 кв.м. на 2 этаже здания класса B. Напрямую от собственника и без комиссии.

Помещение расположено в Приморском районе Санкт-Петербурга и находится в непосредственной близости от метро Пионерская. При БЦ организован паркинг на 60 машино-мест, к зданию также легко добраться на общественном транспорте.

Характеристики

Класс B
Общая площадь 9 368 м2
Дата постройки 1973 г.
ИФНС №26
Этажность 3 эт.
Паркинг 60 м.м.
Кондиционирование Центральное
Провайдеры Дом.ru, ЭР-Телеком