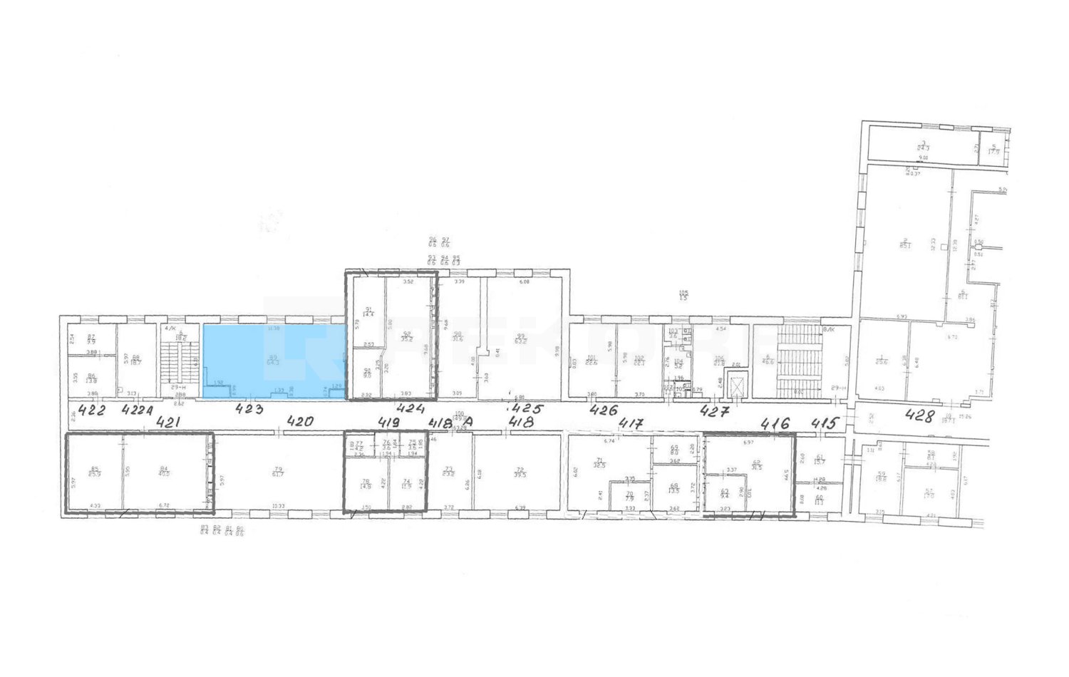
Офис в аренду 64 м2 Помещение №581810

Класс C
Класс БЦ
64 м2
Общая площадь
4 из 7
Этаж
Кабинетная
Планировка
Свободно
Статус
Записаться на просмотр
Санкт-Петербург, Невский район, Бабушкина д. 3, лит. А
  • Елизаровская
    5 минут пешком

Условия

  • Коммунальные услуги включены
  • Электричество включено
  • Уборка оплачивается отдельно
  •  
  • OPEX включены
  • Включая НДС

Описание

БЦ Бабушкина 3 предлагает в аренду помещение 64 кв.м. на 4 этаже здания класса C. Напрямую от собственника и без комиссии.

Помещение расположено в Невском районе Санкт-Петербурга и находится в непосредственной близости от метро Елизаровская. При БЦ организован паркинг на 70 машино-мест, к зданию также легко добраться на общественном транспорте.

Развитая инфраструктура бизнес-центра предусматривает:

Характеристики

Класс C
Общая площадь 20 131 м2
Дата постройки 1963 г.
ИФНС №24
Этажность 7 эт.
Паркинг 70 м.м.
Пассажирские лифты 3
Грузовые лифты 1
Кондиционирование нет
Вентиляция Естественная
Электроснабжение 3 категория
Провайдеры Квантум, Мегафон
Инфраструктура Кафе, Конференц-зал
Высота потолков 3.3 м