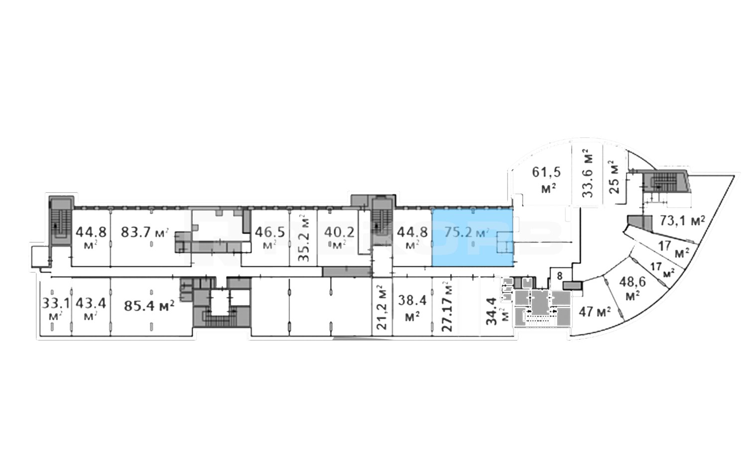
Офис в аренду 75 м2 Помещение №15896

Класс B
Класс БЦ
75 м2
Площадь
3 из 8
Этаж
Кабинетная
Планировка
Свободно
Статус

БЦ Балтика предлагает в аренду помещение 75 кв.м. на 3 этаже здания класса B. Напрямую от собственника и без комиссии.

Помещение расположено в Кировском районе Санкт-Петербурга и находится в непосредственной близости от метро Нарвская. При БЦ организован паркинг на 85 машино-мест, к зданию также легко добраться на общественном транспорте.

Инфраструктура бизнес-центра: Банкомат, Кафе, Ресторан, Конференц-зал, Столовая, Центральная рецепция и Отделение банка

Офис 75 м2

  • Электричество отдельно
  • Уборка оплачивается отдельно
  • Коммунальные услуги включены
  • OPEX включен в ставку
  • Включая НДС