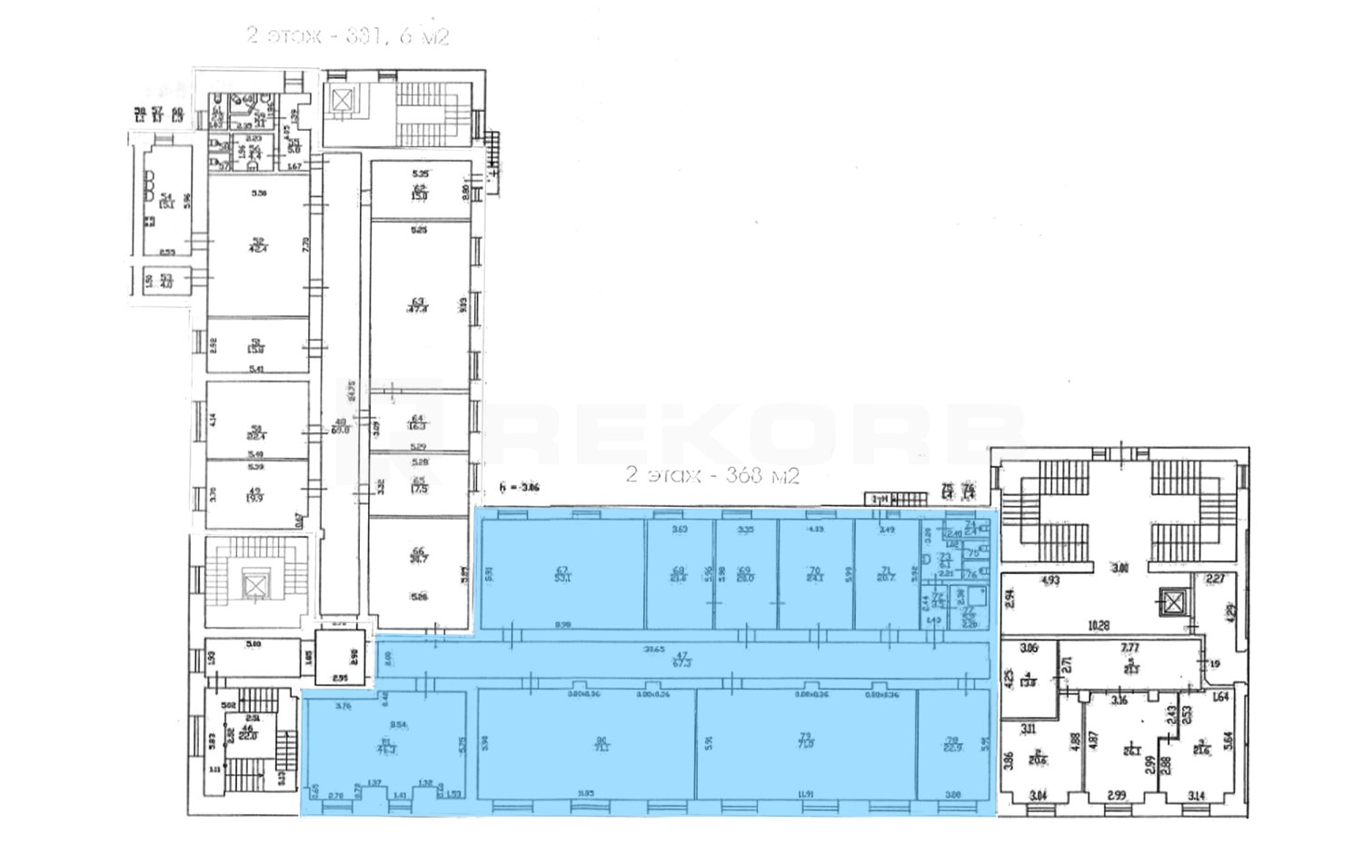
Офис на продажу 368 м2 Помещение №614281

Класс B
Класс БЦ
368 м2
Общая площадь
2 из 5
Этаж
Смешанная
Планировка
Отдельный
Вход в помещение
Планируется к освобождению
Статус
69 920 000 190 000  
Записаться на просмотр
Санкт-Петербург, Василеостровский район, Большой пр. В.О. д. 78
  • Горный институт
    6 минут пешком

Условия

  • Включая НДС

Описание

Большой 78 предлагает на продажу помещение 368 кв.м. с отдельным входом на 2 этаже здания класса B. Напрямую от собственника и без комиссии.

Помещение расположено в Василеостровском районе Санкт-Петербурга и находится в непосредственной близости от метро Горный институт. К зданию также легко добраться на общественном транспорте.

Развитая инфраструктура бизнес-центра предусматривает:

Характеристики

Класс B
Общая площадь 9 692 м2
Дата постройки 1951 г.
ИФНС №16
Этажность 5 эт.
Кондиционирование Местное
Вентиляция Приточно-вытяжная
Выделяемая мощность 90 Вт на метр
Инфраструктура Магазины, Отель, Банкомат, Кафе, Отделение банка