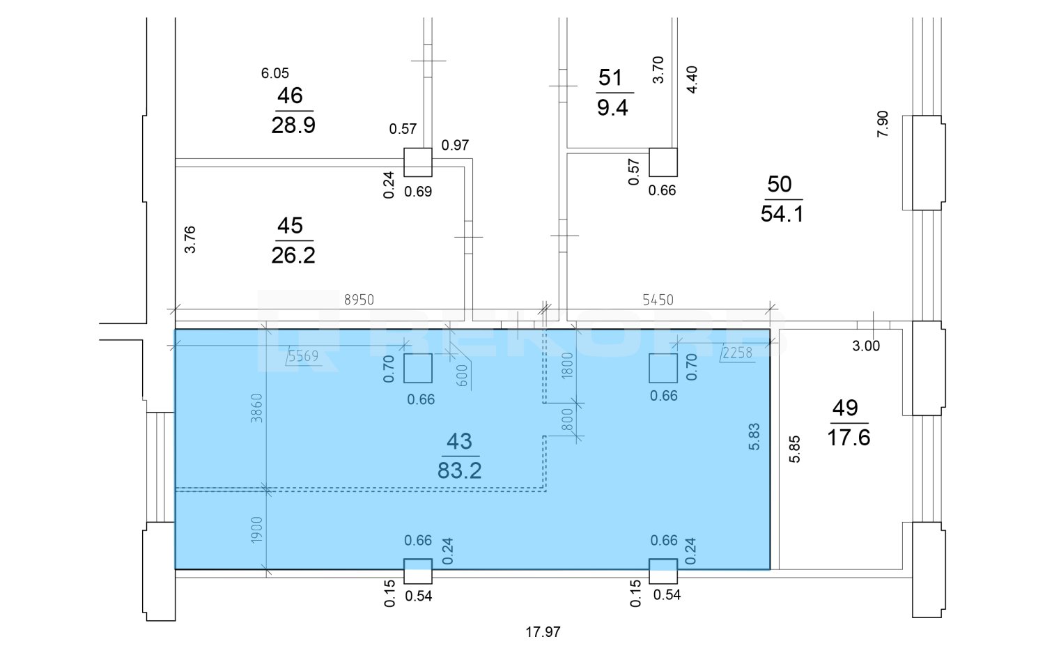
Офис в аренду 85 м2 Помещение №549833

Класс B
Класс БЦ
85 м2
Площадь
1 из 5
Этаж
Свободно
Статус

БЦ Рентгена 5А предлагает в аренду помещение 85 кв.м. на 1 этаже здания класса B. Напрямую от собственника и без комиссии.

Помещение расположено в Петроградском районе Санкт-Петербурга и находится в непосредственной близости от метро Петроградская. При БЦ организован паркинг на 30 машино-мест, к зданию также легко добраться на общественном транспорте.

Офис 85 м2

  • Электричество отдельно
  • Уборка оплачивается отдельно
  • Коммунальные услуги включены
  • OPEX включен в ставку
  • Включая НДС