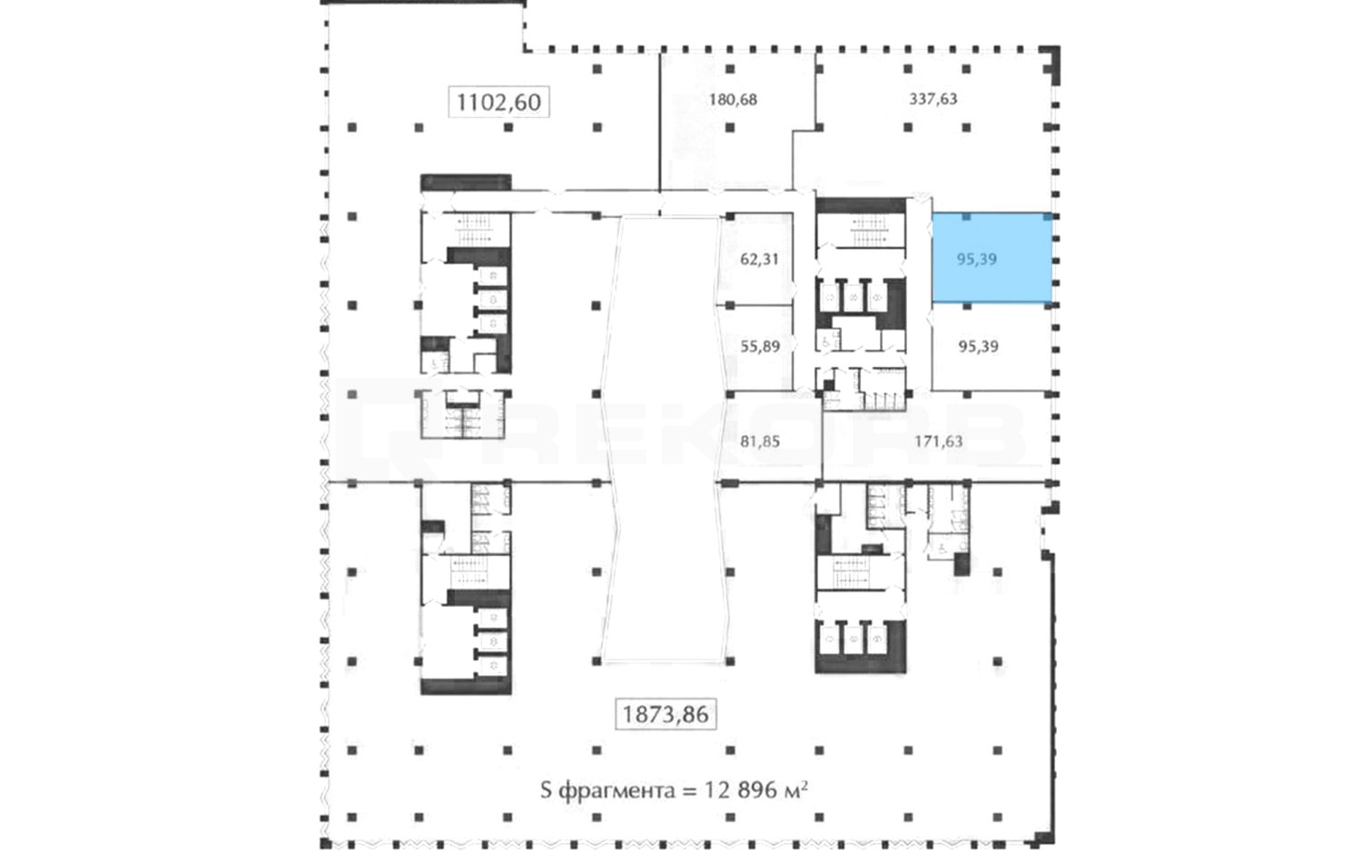
Офис на продажу 95,39 м2 Помещение №642127

Класс A
Класс БЦ
95,39 м2
Площадь
7 из 8
Этаж

БЦ ELEMENT PRIME предлагает на продажу помещение 95,39 кв.м. на 7 этаже здания класса A. Напрямую от собственника и без комиссии.

Помещение расположено в Петроградском районе Санкт-Петербурга и находится в непосредственной близости от метро Чкаловская. При БЦ организован паркинг на 193 машино-места, к зданию также легко добраться на общественном транспорте.