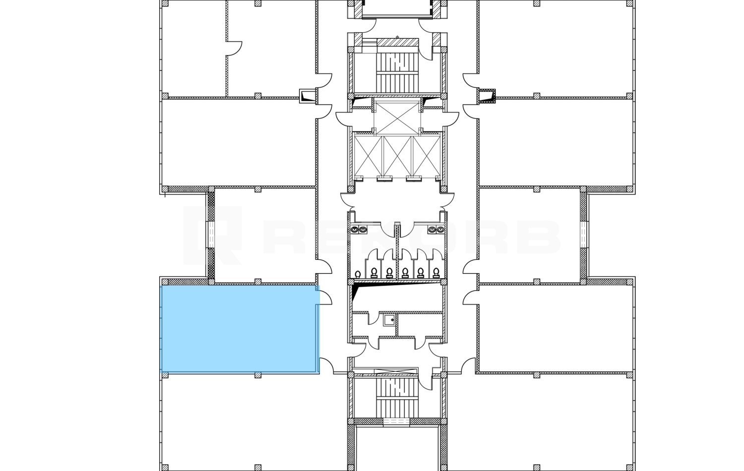
Офис в аренду 56 м2 Помещение №31945

Класс B+
Класс БЦ
56 м2
Площадь
10 из 12
Этаж
Кабинетная
Планировка
Свободно
Статус

БЦ H2O предлагает в аренду помещение 56 кв.м. на 10 этаже здания класса B+. Напрямую от собственника и без комиссии.

Помещение расположено в Красногвардейском районе Санкт-Петербурга и находится в непосредственной близости от метро Ладожская. При БЦ организован паркинг на 280 машино-мест, к зданию также легко добраться на общественном транспорте.

Инфраструктура бизнес-центра: Банкомат, Кафе и Центральная рецепция