Офис в аренду 1 458 м2 Помещение №915593

Класс A
Класс БЦ
1 458 м2
Площадь
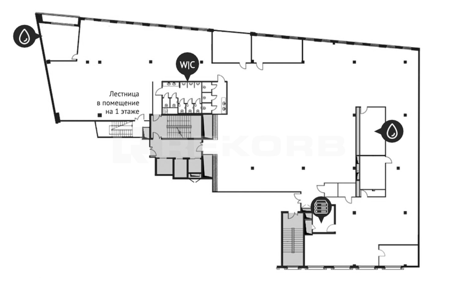
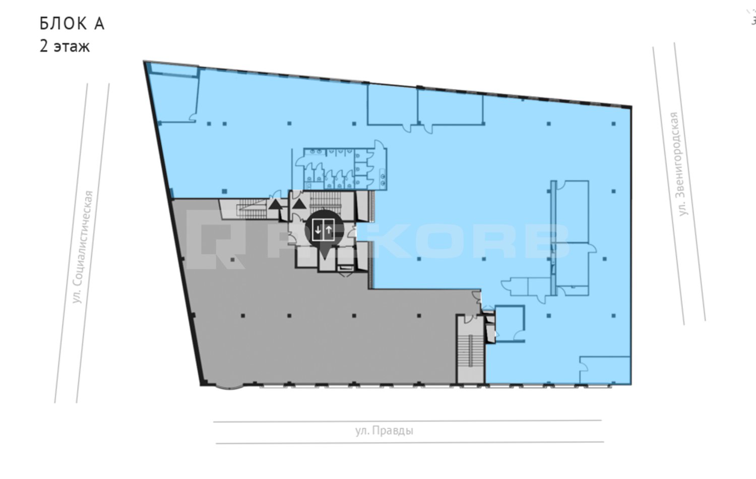
1, 2 из 8
Этажи
Смешанная
Планировка
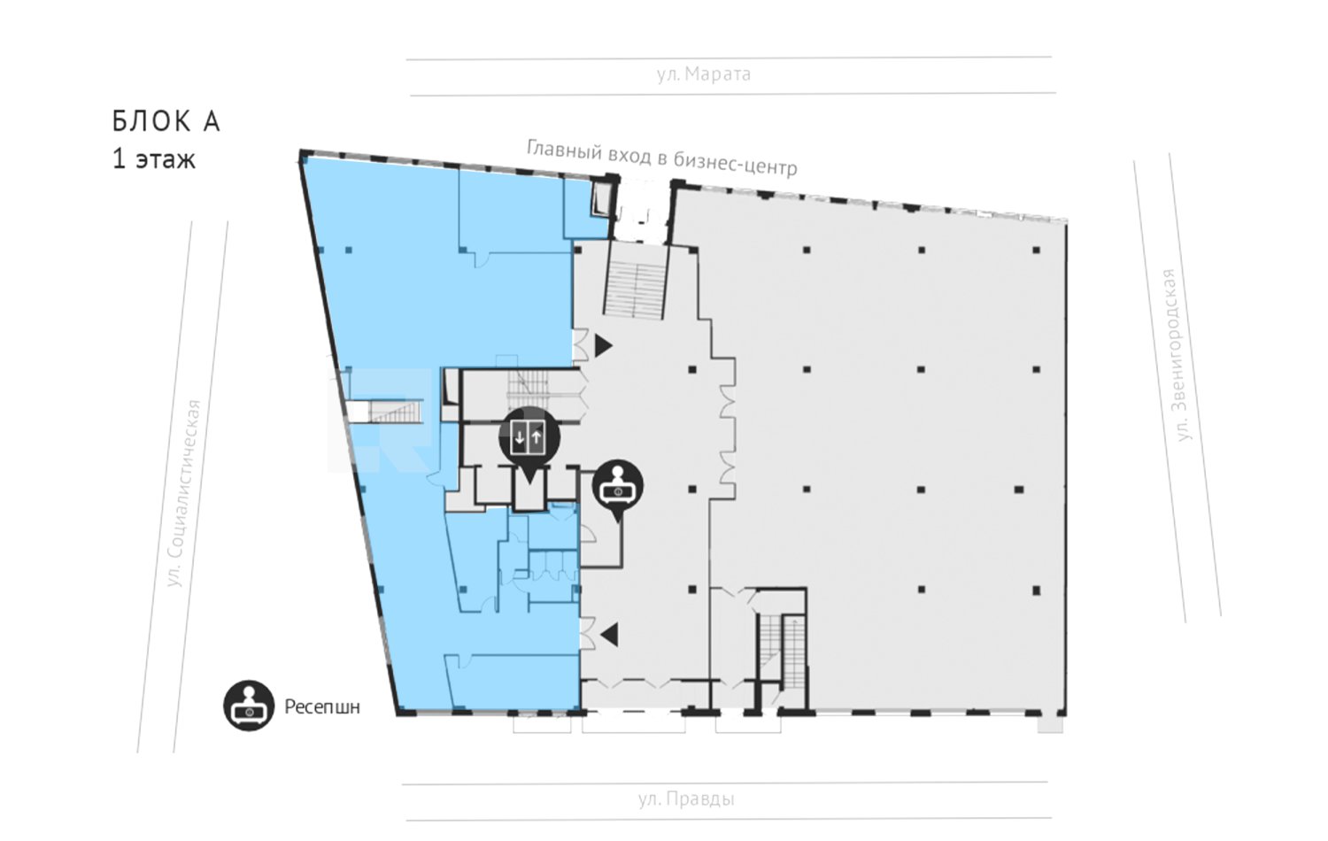
Отдельный
Вход в помещение
Свободно
Статус

БЦ ICON Марата 69-71 предлагает в аренду помещение 1 458 кв.м. с отдельным входом на 1 этаже здания класса A. Напрямую от собственника и без комиссии.

Помещение расположено в Центральном районе Санкт-Петербурга и находится в непосредственной близости от метро Звенигородская. При БЦ организован паркинг на 180 машино-мест, к зданию также легко добраться на общественном транспорте.

Инфраструктура бизнес-центра: Банкомат, Кафе, Центральная рецепция и Фитнес-клуб

Офис 1 458 м2

Стоимость по запросу
  • Электричество отдельно
  • Уборка оплачивается отдельно
  • OPEX оплачивается отдельно
  • Дополнительно оплачивается НДС
  • Коммунальные услуги включены