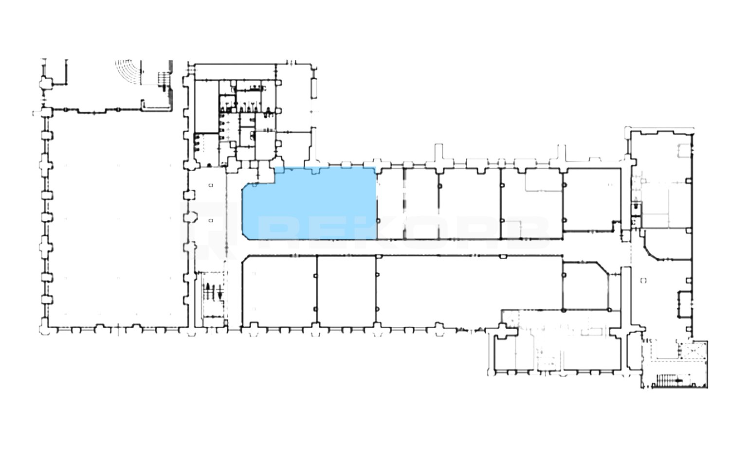
Офис в аренду 130 м2 Помещение №34240

Класс B
Класс БЦ
130 м2
Площадь
1 из 3
Этаж
Open-space
Планировка
Свободно
Статус

БЦ Кондратьевский предлагает в аренду помещение 130 кв.м. на 1 этаже здания класса B. Напрямую от собственника и без комиссии.

Помещение расположено в Калининском районе Санкт-Петербурга и находится в непосредственной близости от метро Площадь Ленина. При БЦ организован паркинг на 500 машино-мест, к зданию также легко добраться на общественном транспорте.

Инфраструктура бизнес-центра: Кафе, Ресторан и Фитнес-клуб

Офис 130 м2

Стоимость по запросу
  • Электричество отдельно
  • Коммунальные услуги включены
  • Уборка включена в ставку
  • OPEX включен в ставку
  • Включая НДС