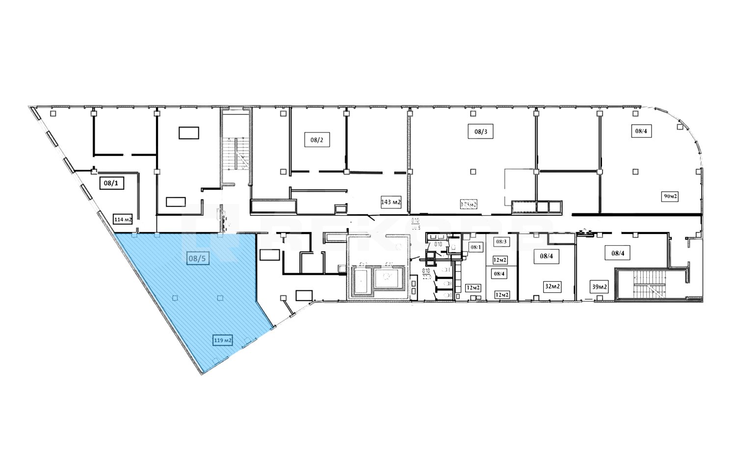
Офис в аренду 119 м2 Помещение №1093339

Класс B+
Класс БЦ
8 из 10
Этаж
Open-space
Планировка
Готово для въезда
Состояние помещения
Свободно
Статус

БЦ Лада предлагает в аренду помещение 119 кв.м. на 8 этаже здания класса B+. Напрямую от собственника и без комиссии.

Помещение расположено в Красногвардейском районе Санкт-Петербурга и находится в непосредственной близости от метро Ладожская. При БЦ организован паркинг на 150 машино-мест, к зданию также легко добраться на общественном транспорте.

Инфраструктура бизнес-центра: Столовая, Кафе и Центральная рецепция

Офис 119 м2

  • Коммунальные услуги отдельно
  • Электричество отдельно
  • Уборка включена в ставку
  • OPEX включен в ставку
  • Включая НДС