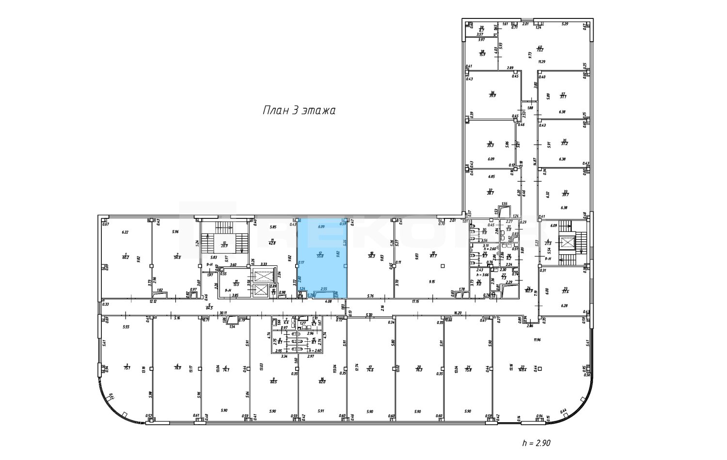
Офис в аренду 55 м2 Помещение №455105

Класс B+
Класс БЦ
55 м2
Общая площадь
3 из 6
Этаж
Open-space
Планировка
Свободно
Статус
Записаться на просмотр
Санкт-Петербург, Приморский район, ул. Оптиков д. 4, к. 3, лит. К
  • Старая Деревня
    13 минут пешком

Условия

  • Коммунальные услуги включены
  • Электричество оплачивается отдельно
  • Уборка оплачивается отдельно
  •  
  • OPEX включены
  • Включая НДС

Описание

БЦ Лахта, II очередь предлагает в аренду помещение 55 кв.м. на 3 этаже здания класса B+. Напрямую от собственника и без комиссии.

Помещение расположено в Приморском районе Санкт-Петербурга и находится в непосредственной близости от метро Старая Деревня. При БЦ организован паркинг на 100 машино-мест, к зданию также легко добраться на общественном транспорте.

Развитая инфраструктура бизнес-центра предусматривает:

Характеристики

Класс B+
Общая площадь 10 340 м2
Дата постройки 2016 г.
ИФНС №26
Этажность 6 эт.
Паркинг 100 м.м.
Пассажирские лифты 2
Грузовые лифты 1
Кондиционирование Центральное
Вентиляция Приточно-вытяжная
Электроснабжение 2 категория
Провайдеры а такжеБилайн
Инфраструктура Центральная рецепция, Фитнес-клуб, Банкомат