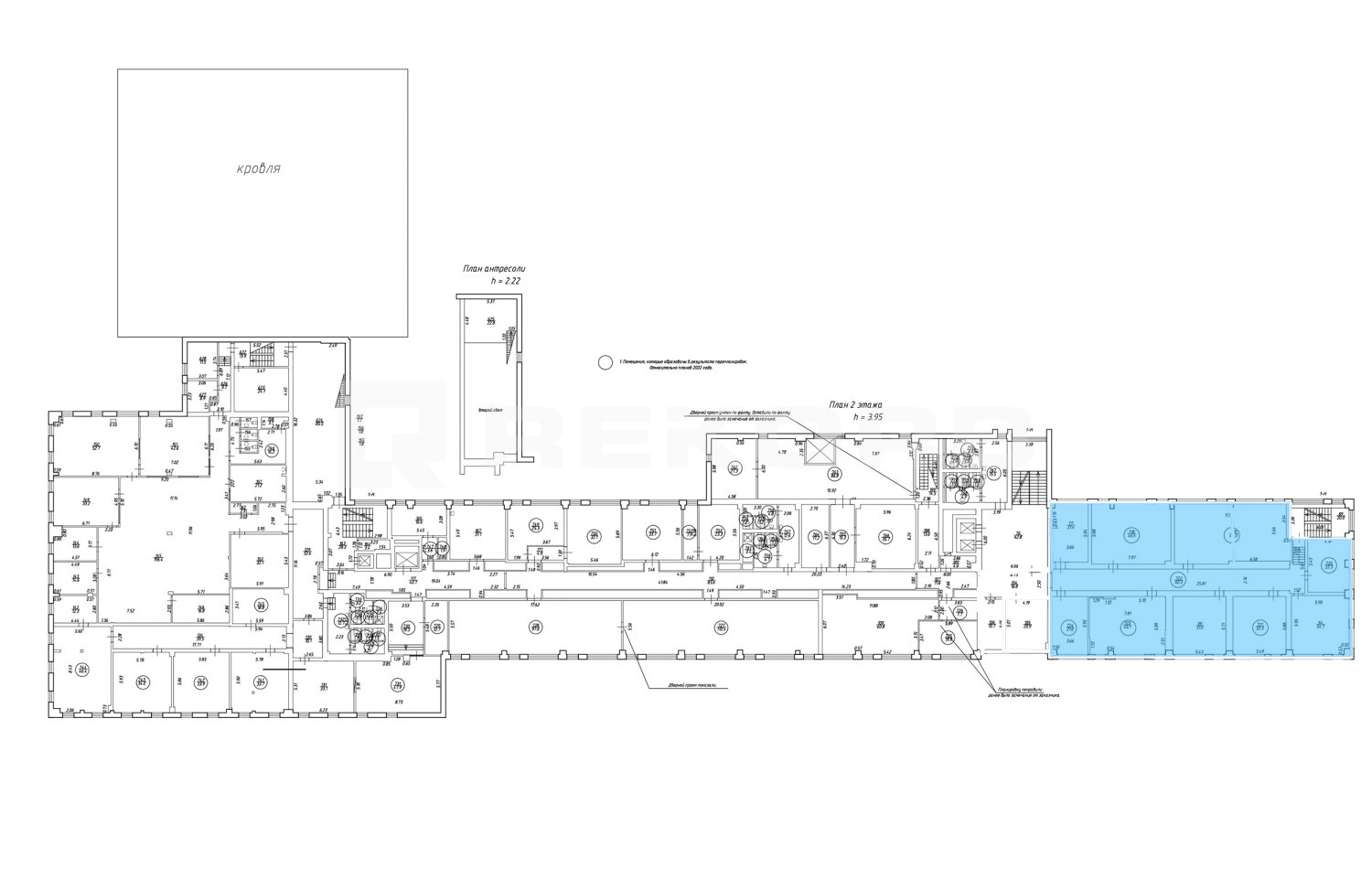
Офис в аренду 323 м2 Помещение №974647

Класс B+
Класс БЦ
323 м2
Площадь
2 из 7
Этаж
Кабинетная
Планировка
Свободно
Статус

БЦ Левашовский предлагает в аренду помещение 323 кв.м. на 2 этаже здания класса B+. Напрямую от собственника и без комиссии.

Помещение расположено в Петроградском районе Санкт-Петербурга и находится в непосредственной близости от метро Чкаловская. При БЦ организован паркинг на 15 машино-мест, к зданию также легко добраться на общественном транспорте.

Инфраструктура бизнес-центра: Банкомат, Кафе, Центральная рецепция и Отделение банка

Офис 323 м2

  • Уборка оплачивается отдельно
  • Коммунальные услуги включены
  • Электричество включено
  • OPEX включен в ставку
  • Включая НДС