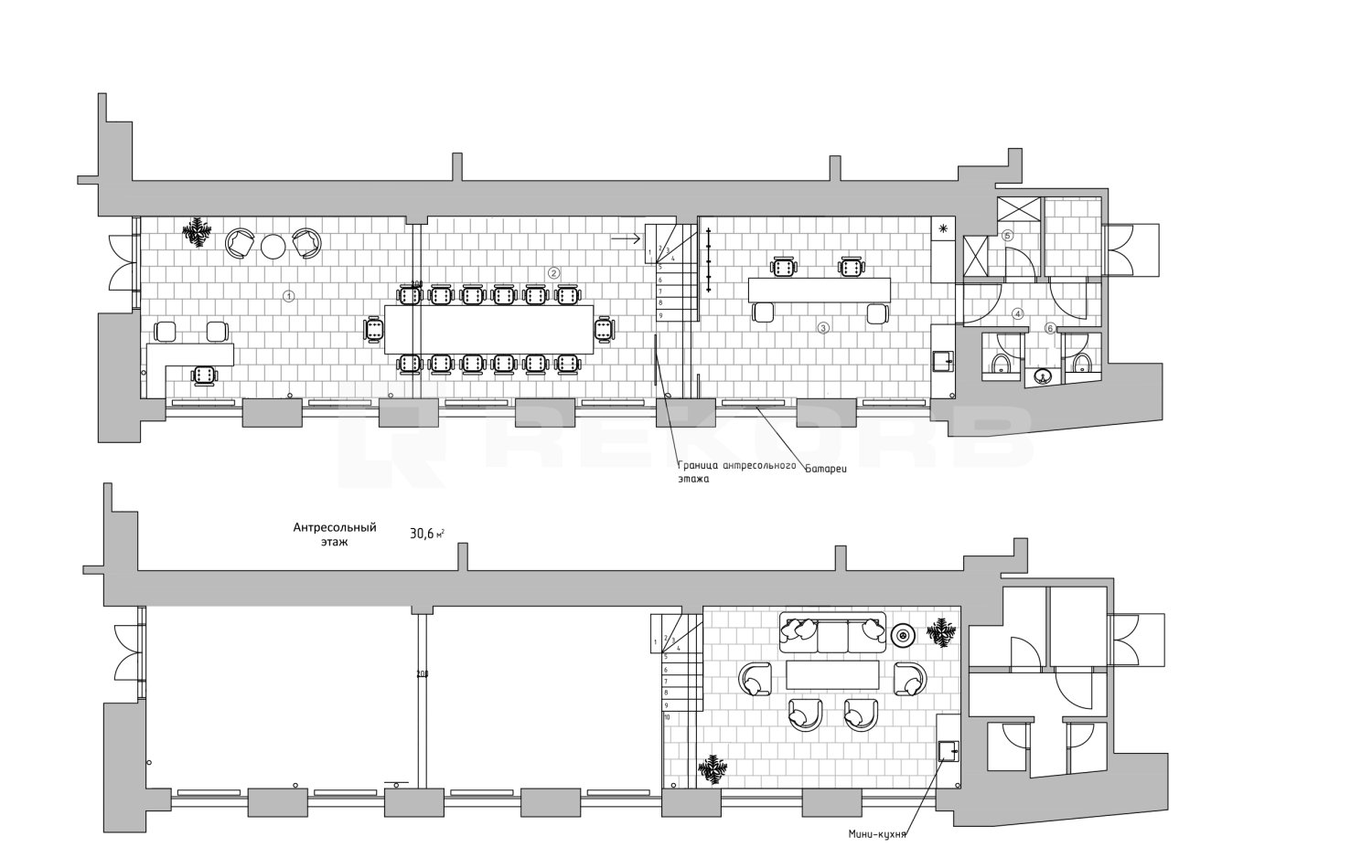
Офис в аренду 135 м2 Помещение №669638

Класс B
Класс БЦ
135 м2
Площадь
1 из 6
Этаж
Смешанная
Планировка
Свободно
Статус

БЦ Лидваль предлагает в аренду помещение 135 кв.м. на 1 этаже здания класса B. Напрямую от собственника и без комиссии.

Помещение расположено в Центральном районе Санкт-Петербурга и находится в непосредственной близости от метро Адмиралтейская. К зданию также легко добраться на общественном транспорте.

Инфраструктура бизнес-центра: Кафе и Центральная рецепция