Офис в аренду 70 м2 Помещение №1092769

Класс B
Класс БЦ
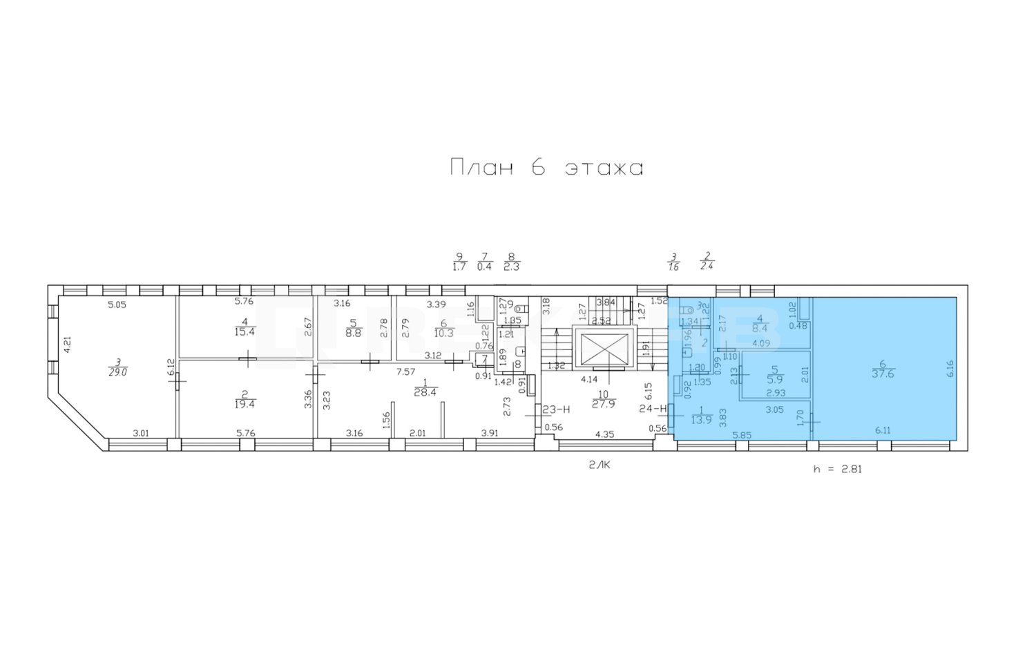
70 м2
Площадь
6 из 8
Этаж
Свободно
Статус

БЦ Лиговский 78 предлагает в аренду помещение 70 кв.м. на 6 этаже здания класса B. Напрямую от собственника и без комиссии.

Помещение расположено в Центральном районе Санкт-Петербурга и находится в непосредственной близости от метро Лиговский проспект. К зданию также легко добраться на общественном транспорте.

Инфраструктура бизнес-центра: Кафе, Магазины и Банкомат

Офис 70 м2

  • Коммунальные услуги отдельно
  • Электричество отдельно
  • Уборка оплачивается отдельно
  • OPEX включен в ставку
  • Включая НДС