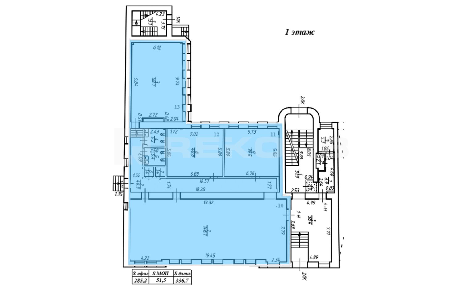
Офис в аренду 337 м2 Помещение №1137112

Класс B+
Класс БЦ
337 м2
Площадь
1 из 6
Этаж
Смешанная
Планировка
31.07.2026 г.
Дата освобождения

БЦ Маркс предлагает в аренду помещение 337 кв.м. на 1 этаже здания класса B+. Напрямую от собственника и без комиссии.

Помещение расположено в Адмиралтейском районе Санкт-Петербурга и находится в непосредственной близости от метро Балтийская. При БЦ организован паркинг на 130 машино-мест, к зданию также легко добраться на общественном транспорте.

Инфраструктура бизнес-центра: Банкомат, Кафе, Центральная рецепция и Отделение банка

Офис 337 м2

  • Электричество отдельно
  • Уборка оплачивается отдельно
  • Коммунальные услуги включены
  • OPEX включен в ставку
  • Включая НДС