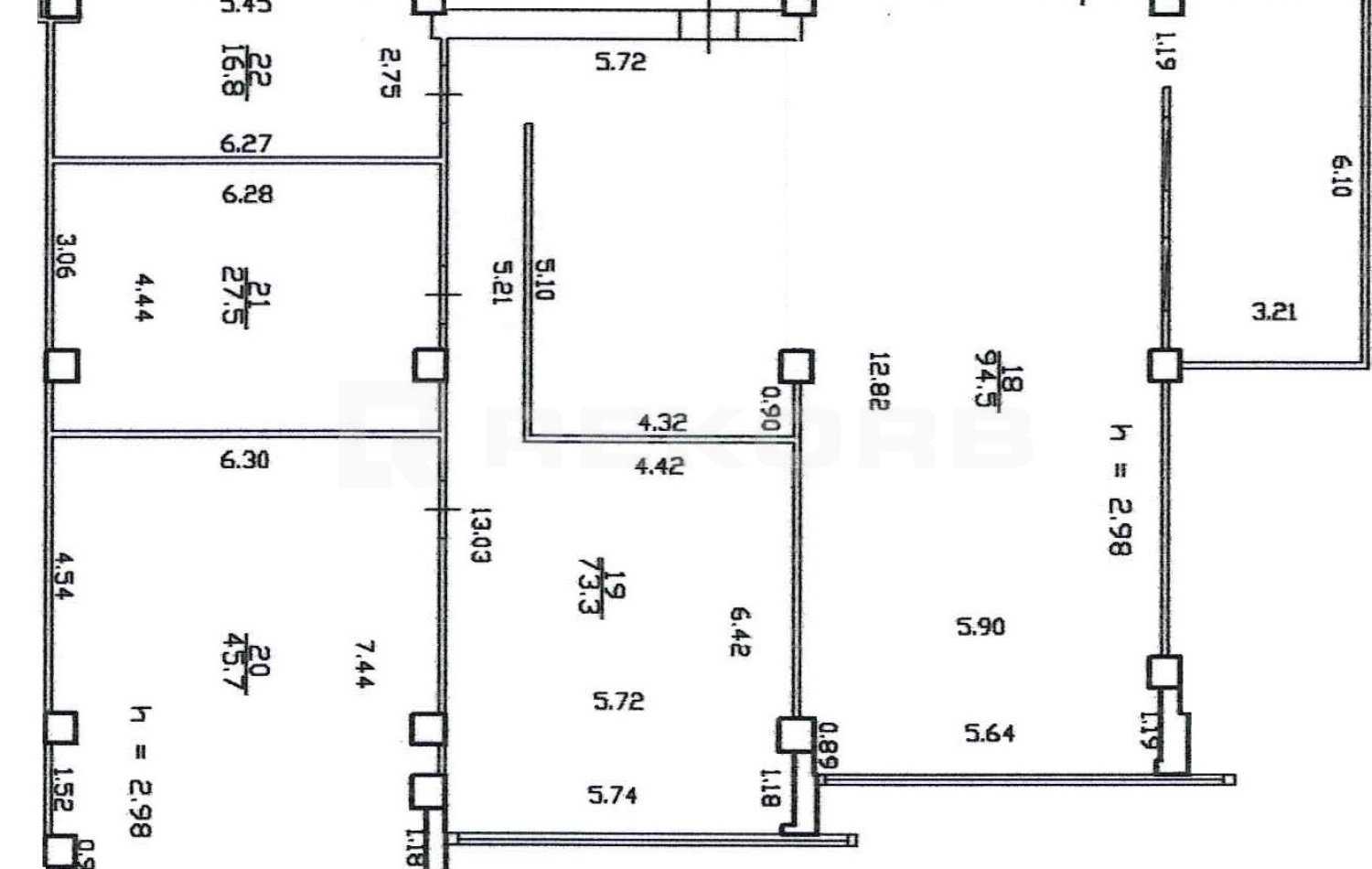
Офис в аренду 258 м2 Помещение №523105

Класс B+
Класс БЦ
258 м2
Общая площадь
5 из 5
Этаж
Смешанная
Планировка
Свободно
Статус
Записаться на просмотр
Санкт-Петербург, Невский район, ул. Седова д. 11, к. 2
  • Елизаровская
    23 минуты пешком

Условия

  • Коммунальные услуги включены
  • Электричество включено
  • Уборка включена
  •  
  • OPEX включены
  • Включая НДС

Описание

БЦ Марвел предлагает в аренду помещение 258 кв.м. на 5 этаже здания класса B+. Напрямую от собственника и без комиссии.

Помещение расположено в Невском районе Санкт-Петербурга и находится в непосредственной близости от метро Елизаровская. При БЦ организован паркинг на 72 машино-места, к зданию также легко добраться на общественном транспорте.

Развитая инфраструктура бизнес-центра предусматривает:

Характеристики

Класс B+
Общая площадь 8 721 м2
Дата реконструкции 2010 г.
ИФНС №24
Этажность 5 эт.
Паркинг 72 м.м.
Пассажирские лифты 2
Грузовые лифты 2
Кондиционирование Центральное и местное
Вентиляция Приточно-вытяжная
Электроснабжение 2 категория
Провайдеры МТ-Телеком
Инфраструктура Банкомат, Кафе, Конференц-зал, Столовая, Центральная рецепция, Отделение банка, Фитнес-клуб
Высота потолков 2.6 м, 3.4 м
Нагрузка на перекрытия 1000 кг