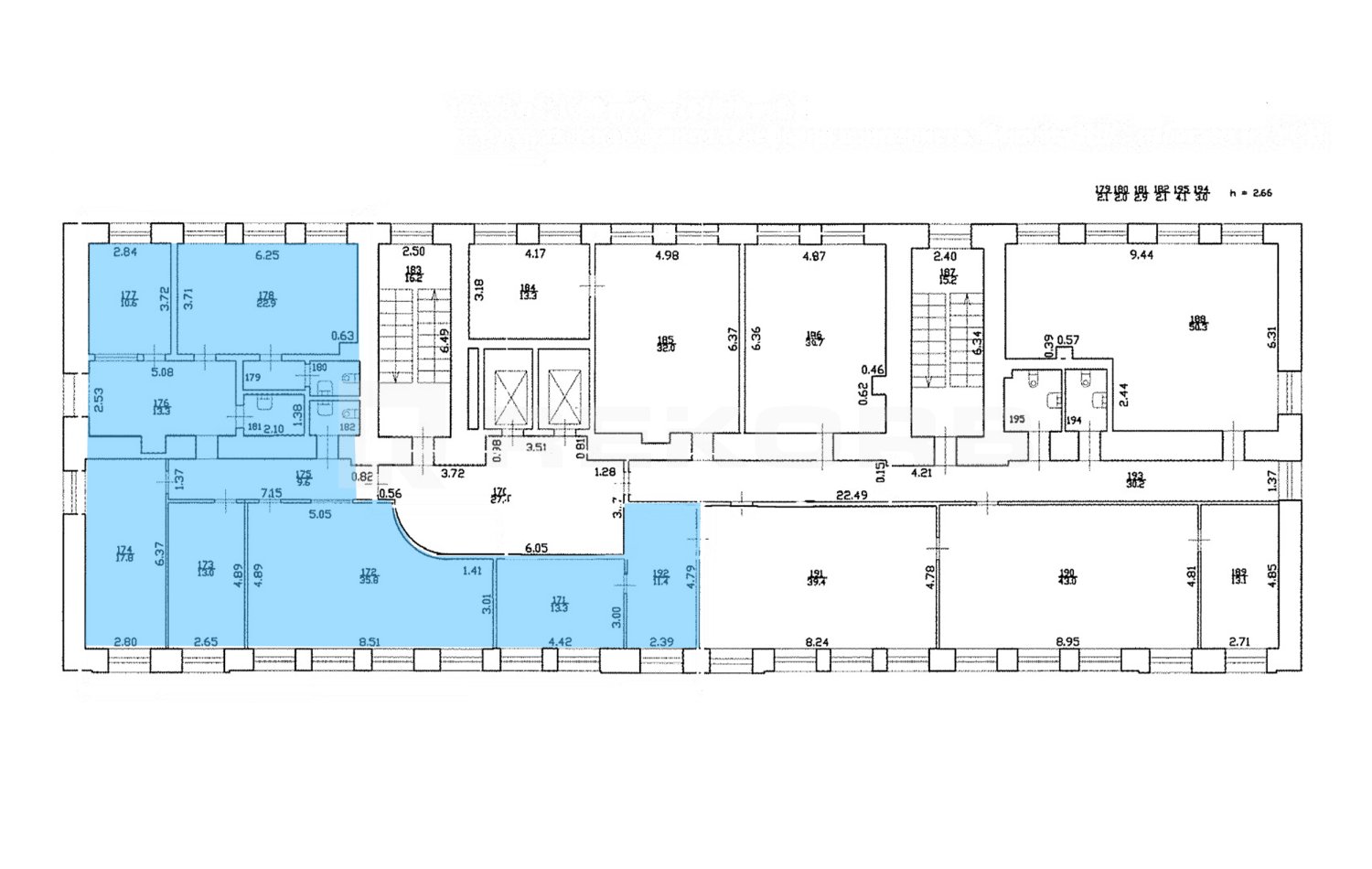
Офис в аренду 165 м2 Помещение №614981

Класс B
Класс БЦ
6 из 7
Этаж
Смешанная
Планировка
Готово для въезда
Состояние помещения
Свободно
Статус
Записаться на просмотр
Санкт-Петербург, Московский район, ул. Заставская д. 3, лит. А
  • Московские ворота
    17 минут пешком

Условия

  • Коммунальные услуги включены
  • Электричество включено
  • Уборка включена
  •  
  • OPEX включены
  • УСН

Описание

БЦ Maxcel предлагает в аренду помещение 165 кв.м. на 6 этаже здания класса B. Напрямую от собственника и без комиссии.

Помещение расположено в Московском районе Санкт-Петербурга и находится в непосредственной близости от метро Московские ворота. При БЦ организован паркинг на 55 машино-мест, к зданию также легко добраться на общественном транспорте.

Развитая инфраструктура бизнес-центра предусматривает:

Характеристики

Класс B
Общая площадь 3 113 м2
Дата реконструкции 2005 г.
ИФНС №23
Этажность 7 эт.
Паркинг 55 м.м.
Пассажирские лифты 2
Кондиционирование Местное
Вентиляция Приточно-вытяжная
Электроснабжение 2 категория
Выделяемая мощность 96 Вт на метр
Провайдеры Смарт Телеком
Инфраструктура Банкомат, Кафе, Конференц-зал, Центральная рецепция, Отделение банка