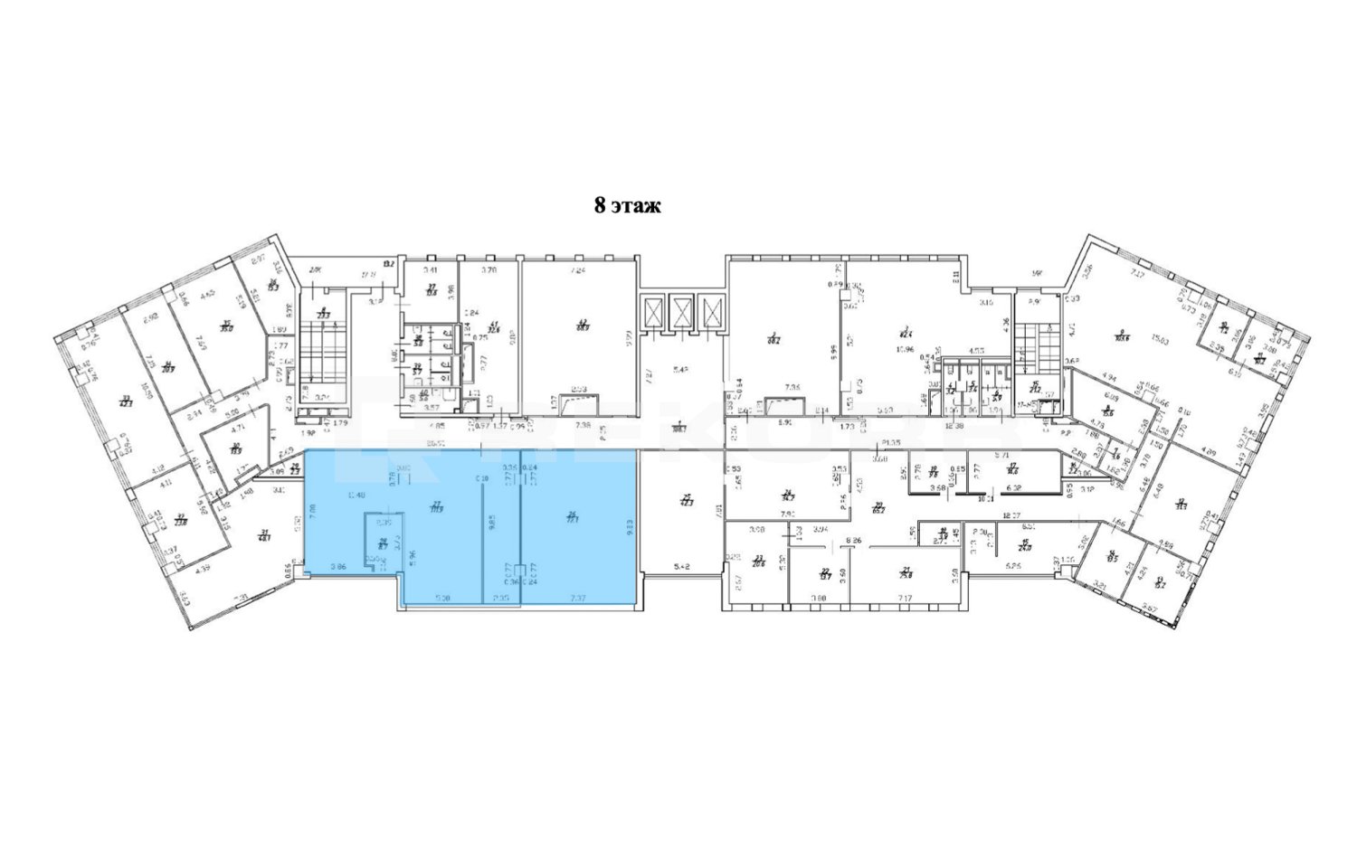
Офис в аренду 121 м2 Помещение №1004206

Класс B+
Класс БЦ
121 м2
Площадь
8 из 11
Этаж
Кабинетная
Планировка
Свободно
Статус

БЦ Мельник предлагает в аренду помещение 121 кв.м. на 8 этаже здания класса B+. Напрямую от собственника и без комиссии.

Помещение расположено в Невском районе Санкт-Петербурга и находится в непосредственной близости от метро Площадь Александра Невского-I. При БЦ организован паркинг на 200 машино-мест, к зданию также легко добраться на общественном транспорте.

Инфраструктура бизнес-центра: Столовая и Ресторан

Офис 121 м2

  • Уборка оплачивается отдельно
  • Коммунальные услуги включены
  • Электричество включено
  • OPEX включен в ставку
  • Включая НДС