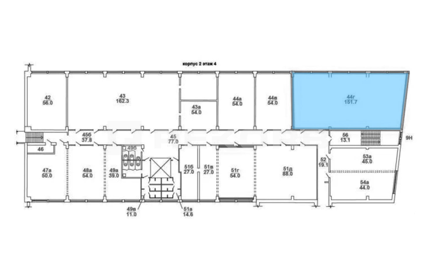
Офис в аренду 152 м2 Помещение №841850

Класс C
Класс БЦ
152 м2
Площадь
4 из 7
Этаж
Open-space
Планировка
Свободно
Статус

БЦ Компонент Технопарк предлагает в аренду помещение 152 кв.м. на 4 этаже здания класса C. Напрямую от собственника и без комиссии.

Помещение расположено в Калининском районе Санкт-Петербурга и находится в непосредственной близости от метро Лесная. При БЦ организован паркинг на 250 машино-мест, к зданию также легко добраться на общественном транспорте.

Инфраструктура бизнес-центра: Магазины, Кафе, Аптека, Отделение банка и Фитнес-клуб

Офис 152 м2

  • Коммунальные услуги отдельно
  • Электричество отдельно
  • Уборка оплачивается отдельно
  • OPEX оплачивается отдельно
  • Включая НДС