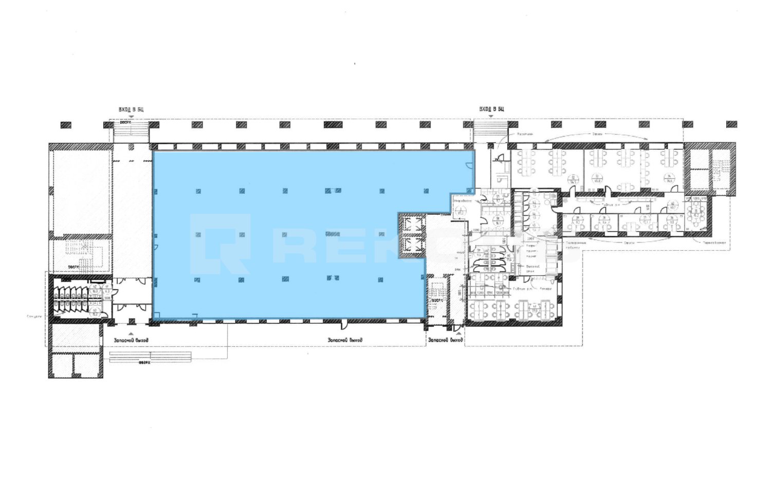
Офис в аренду 955 м2 Помещение №727094

Класс B
Класс БЦ
955 м2
Площадь
1 из 4
Этаж
Open-space
Планировка
31.05.2026 г.
Дата освобождения

БЦ На Косой линии 16 предлагает в аренду помещение 955 кв.м. на 1 этаже здания класса B. Напрямую от собственника и без комиссии.

Помещение расположено в Василеостровском районе Санкт-Петербурга и находится в непосредственной близости от метро Горный институт. При БЦ организован паркинг на 70 машино-мест, к зданию также легко добраться на общественном транспорте.

Инфраструктура бизнес-центра: Столовая и Конференц-зал

Офис 955 м2

  • Коммунальные услуги отдельно
  • Электричество отдельно
  • Уборка оплачивается отдельно
  • OPEX включен в ставку
  • Упрощенная система налогообложения