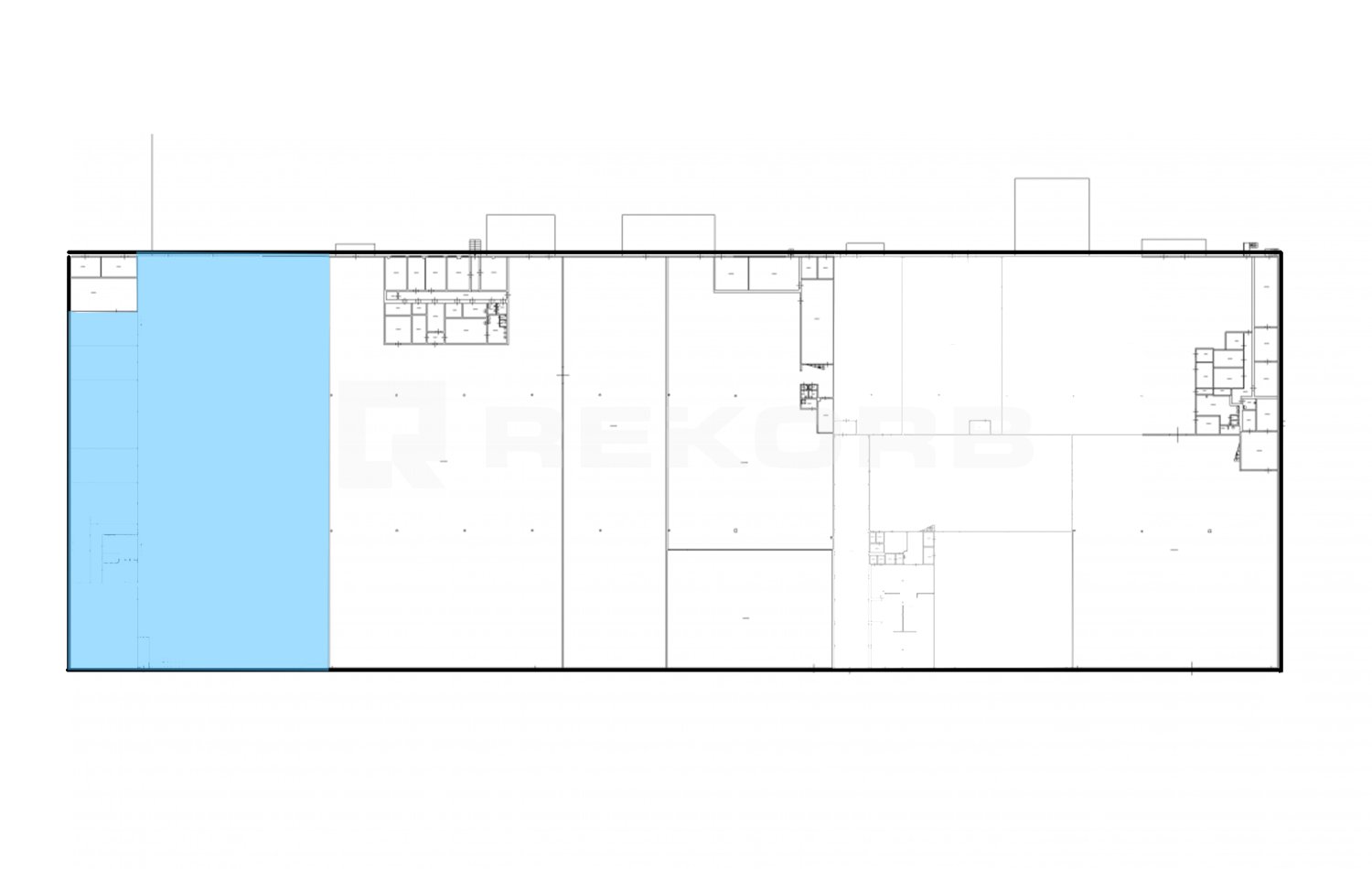
Офис в аренду 4 409 м2 Помещение №698819

Класс C
Класс БЦ
4 409 м2
Общая площадь
1 из 5
Этаж
Смешанная
Планировка
Отдельный
Вход в помещение
Свободно
Статус
Записаться на просмотр
Санкт-Петербург, Приморский район, Мебельная ул. д. 5
  • Старая Деревня
    11 минут пешком

Условия

  • Коммунальные услуги оплачиваются отдельно
  • Электричество оплачивается отдельно
  • Уборка оплачивается отдельно
  •  
  • OPEX оплачиваются отдельно
  • Включая НДС

Описание

БЦ На Мебельной предлагает в аренду помещение 4 409 кв.м. с отдельным входом на 1 этаже здания класса C. Напрямую от собственника и без комиссии.

Помещение расположено в Приморском районе Санкт-Петербурга и находится в непосредственной близости от метро Старая Деревня. При БЦ организован паркинг на 100 машино-мест, к зданию также легко добраться на общественном транспорте.

Развитая инфраструктура бизнес-центра предусматривает:

Характеристики

Класс C
Общая площадь 28 660 м2
ИФНС №26
Этажность 5 эт.
Паркинг 100 м.м.
Кондиционирование Местное
Вентиляция Естественная
Электроснабжение 3 категория
Провайдеры Чайка Телеком, Последняя миля
Инфраструктура Кафе