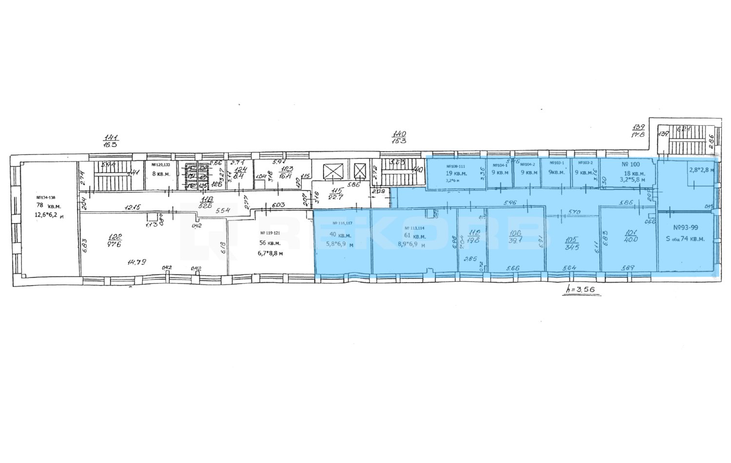
Офис в аренду 400 м2 Помещение №697740

Класс C
Класс БЦ
400 м2
Площадь
3 из 5
Этаж
Смешанная
Планировка
Свободно
Статус

БЦ На ул. Красуцкого 4 предлагает в аренду помещение 400 кв.м. на 3 этаже здания класса C. Напрямую от собственника и без комиссии.

Помещение расположено в Адмиралтейском районе Санкт-Петербурга и находится в непосредственной близости от метро Фрунзенская. К зданию также легко добраться на общественном транспорте.

Офис 400 м2

  • Электричество отдельно
  • Уборка оплачивается отдельно
  • Коммунальные услуги включены
  • OPEX включен в ставку
  • Включая НДС