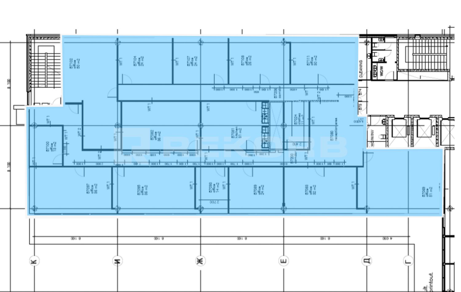
Офис в аренду 575 м2 Помещение №726431

Класс A
Класс БЦ
575 м2
Площадь
7 из 8
Этаж
Смешанная
Планировка
Свободно
Статус

БЦ NOBIUS предлагает в аренду помещение 575 кв.м. на 7 этаже здания класса A. Напрямую от собственника и без комиссии.

Помещение расположено в Московском районе Санкт-Петербурга и находится в непосредственной близости от метро Московская. При БЦ организован паркинг на 800 машино-мест, к зданию также легко добраться на общественном транспорте.

Инфраструктура бизнес-центра: Банкомат, Кафе, Ресторан, Конференц-зал, Столовая, Центральная рецепция и Отделение банка

Офис 575 м2

  • Электричество отдельно
  • Уборка оплачивается отдельно
  • Дополнительно оплачивается НДС
  • Коммунальные услуги включены
  • OPEX включен в ставку