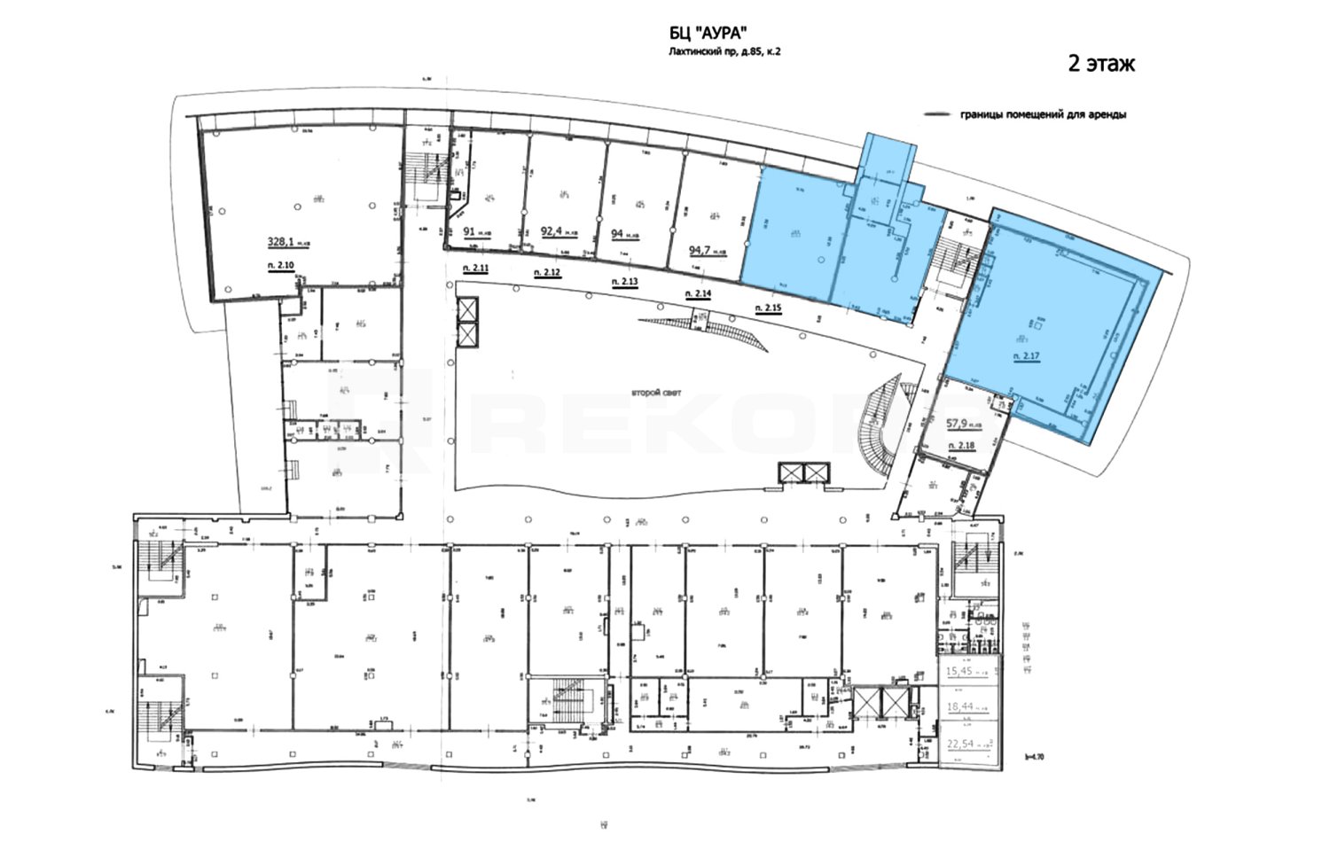
Офис в аренду 495 м2 Помещение №1134586

Класс B
Класс БЦ
2 из 3
Этаж
Смешанная
Планировка
Готово для въезда
Состояние помещения
Свободно
Статус

БЦ Аура предлагает в аренду помещение 495 кв.м. на 2 этаже здания класса B. Напрямую от собственника и без комиссии.

Помещение расположено в Приморском районе Санкт-Петербурга и находится в непосредственной близости от метро Беговая. При БЦ организован паркинг на 200 машино-мест, к зданию также легко добраться на общественном транспорте.

Инфраструктура бизнес-центра: Кафе, Аптека и Магазины

Офис 495 м2

  • Коммунальные услуги отдельно
  • Электричество отдельно
  • Уборка оплачивается отдельно
  • OPEX включен в ставку
  • Включая НДС