Офис в аренду 302 м2 Помещение №31933

Класс B+
Класс БЦ
302 м2
Площадь
2 - 4 из 5
Этажи
Смешанная
Планировка
Свободно
Статус

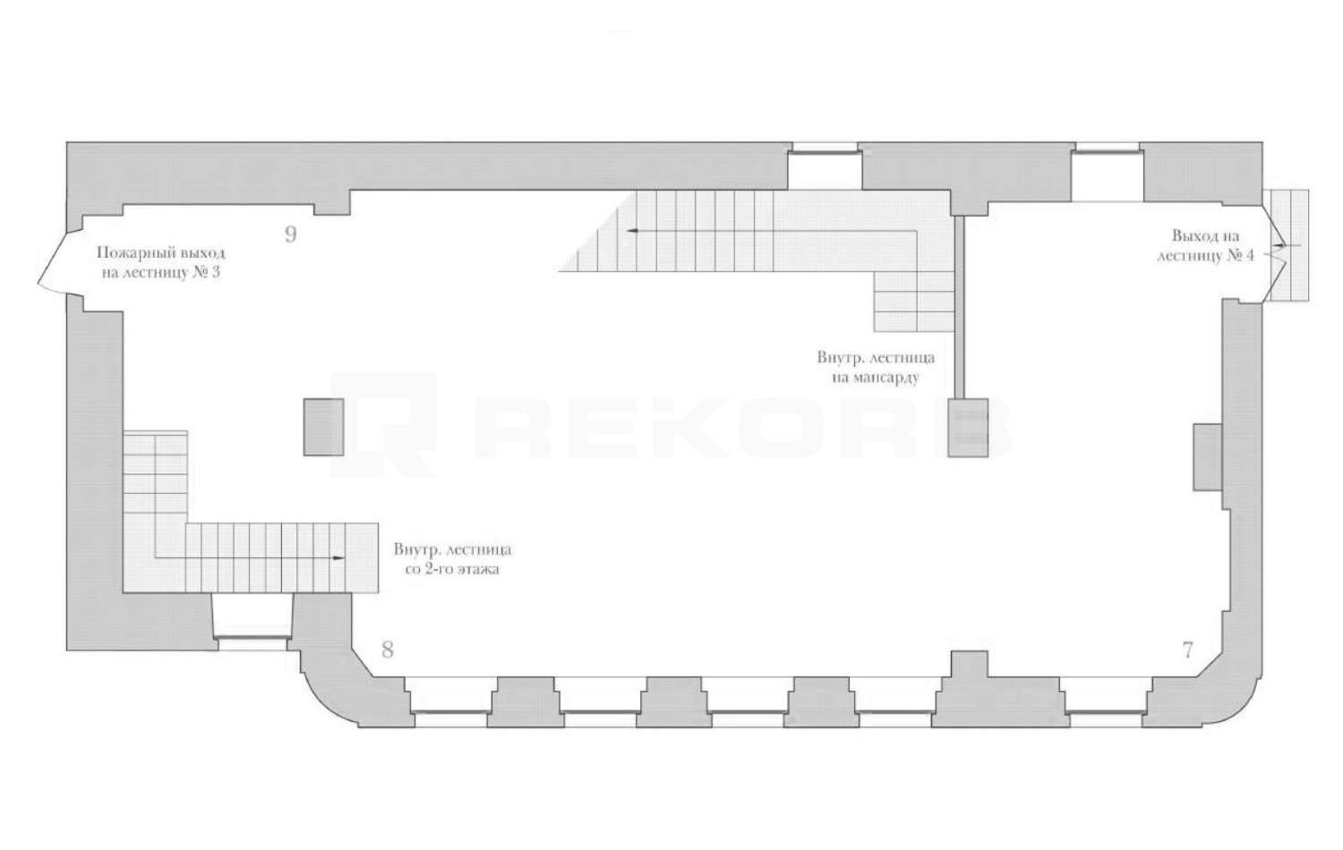
БЦ Ново-Исаакиевский предлагает в аренду помещение 302 кв.м. на 2 этаже здания класса B+. Напрямую от собственника и без комиссии.

Помещение расположено в Адмиралтейском районе Санкт-Петербурга и находится в непосредственной близости от метро Адмиралтейская. К зданию также легко добраться на общественном транспорте.

Инфраструктура бизнес-центра: Кафе и Ресторан

Офис 302 м2

  • Уборка оплачивается отдельно
  • Коммунальные услуги включены
  • Электричество включено
  • OPEX включен в ставку
  • Включая НДС