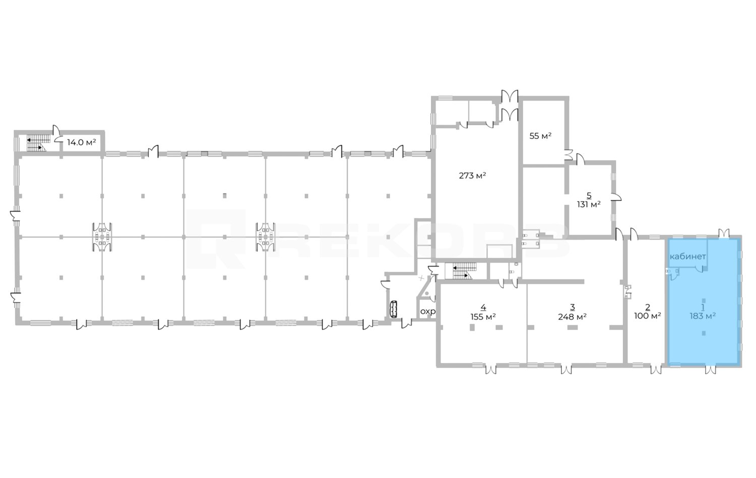
Офис в аренду 183 м2 Помещение №944261

183 м2
Площадь
1 из 2
Этаж
Смешанная
Планировка
Свободно
Статус

ОСЗ Манежная 5 предлагает в аренду помещение 183 кв.м. на 1 этаже. Напрямую от собственника и без комиссии.

Помещение расположено в Петродворцовом районе Санкт-Петербурга и находится в непосредственной близости от метро Проспект Ветеранов. При БЦ организован паркинг на 100 машино-мест, к зданию также легко добраться на общественном транспорте.

Инфраструктура бизнес-центра: Магазины и Медицинский центр

Офис 183 м2

  • Коммунальные услуги отдельно
  • Электричество отдельно
  • Уборка оплачивается отдельно
  • OPEX оплачивается отдельно