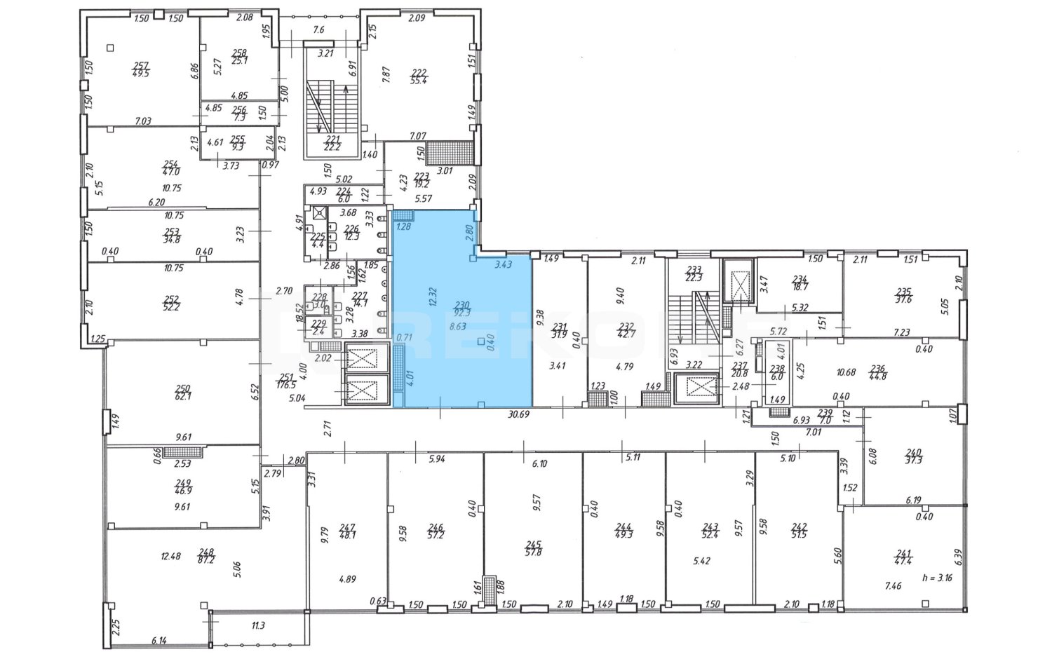
Офис в аренду 92 м2 Помещение №756110

Класс B+
Класс БЦ
92 м2
Общая площадь
10 из 17
Этаж
Кабинетная
Планировка
01.02.2026 г.
Дата освобождения
Записаться на просмотр
Санкт-Петербург, Фрунзенский район, Софийская ул. д. 6, стр. 1, к. 8
  • Бухарестская
    19 минут пешком

Условия

  • Коммунальные услуги включены
  • Электричество включено
  • Уборка включена
  •  
  • OPEX включены
  • Включая НДС

Описание

БЦ Полис Центр предлагает в аренду помещение 92 кв.м. на 10 этаже здания класса B+. Напрямую от собственника и без комиссии.

Помещение расположено в Фрунзенском районе Санкт-Петербурга и находится в непосредственной близости от метро Бухарестская. При БЦ организован паркинг на 212 машино-мест, к зданию также легко добраться на общественном транспорте.

Развитая инфраструктура бизнес-центра предусматривает:

Характеристики

Класс B+
Общая площадь 27 031 м2
Арендопригодная площадь 13 200 м2
Дата постройки 2016 г.
ИФНС №27
Этажность 17 эт.
Паркинг 212 м.м.
Пассажирские лифты 4
Грузовые лифты 2
Напольное покрытие Линолеум, Плитка, Ламинат
Кондиционирование Центральное
Вентиляция Приточно-вытяжная
Электроснабжение 2 категория
Выделяемая мощность 100 Вт на метр
Провайдеры
Инфраструктура Кафе, Центральная рецепция, Конференц-зал
Высота потолков 2.7 м, 3.8 м
Нагрузка на перекрытия 300 кг