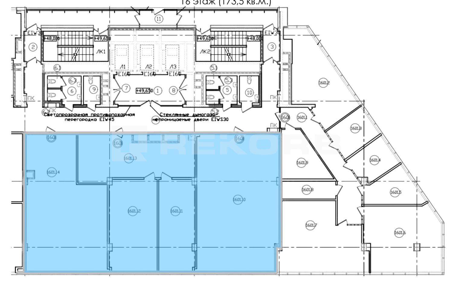
Офис в аренду 174 м2 Помещение №1131767

Класс B+
Класс БЦ
174 м2
Площадь
16 из 17
Этаж
Смешанная
Планировка
02.07.2026 г.
Дата освобождения

БЦ Пулково Стар предлагает в аренду помещение 174 кв.м. на 16 этаже здания класса B+. Напрямую от собственника и без комиссии.

Помещение расположено в Московском районе Санкт-Петербурга и находится в непосредственной близости от метро Звёздная. При БЦ организован паркинг на 93 машино-места, к зданию также легко добраться на общественном транспорте.

Инфраструктура бизнес-центра: Банкомат, Кафе, Конференц-зал, Центральная рецепция и Отделение банка

Офис 174 м2

  • Электричество отдельно
  • Уборка оплачивается отдельно
  • Коммунальные услуги включены
  • OPEX включен в ставку
  • Включая НДС