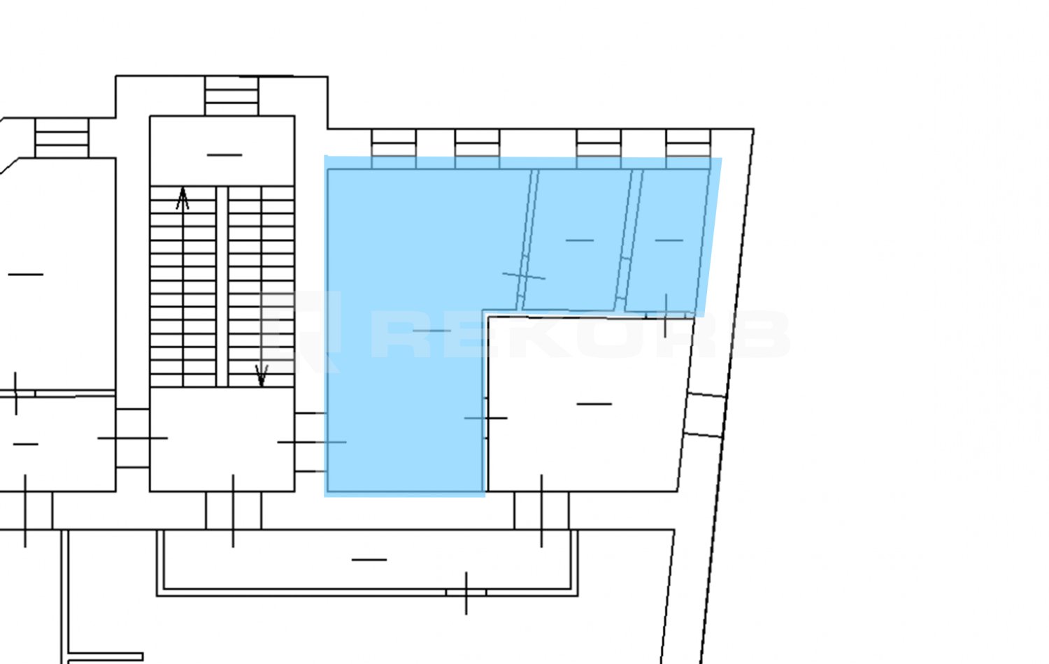
Офис в аренду 52 м2 Помещение №782993

Класс C
Класс БЦ
52 м2
Площадь
3 из 3
Этаж
Смешанная
Планировка
Свободно
Статус

БЦ Рассвет предлагает в аренду помещение 52 кв.м. на 3 этаже здания класса C. Напрямую от собственника и без комиссии.

Помещение расположено в Центральном районе Санкт-Петербурга и находится в непосредственной близости от метро Площадь Восстания. К зданию также легко добраться на общественном транспорте.

Инфраструктура бизнес-центра: Кафе и Ресторан

Офис 52 м2

  • Коммунальные услуги отдельно
  • Электричество отдельно
  • Уборка оплачивается отдельно
  • OPEX оплачивается отдельно
  • Включая НДС