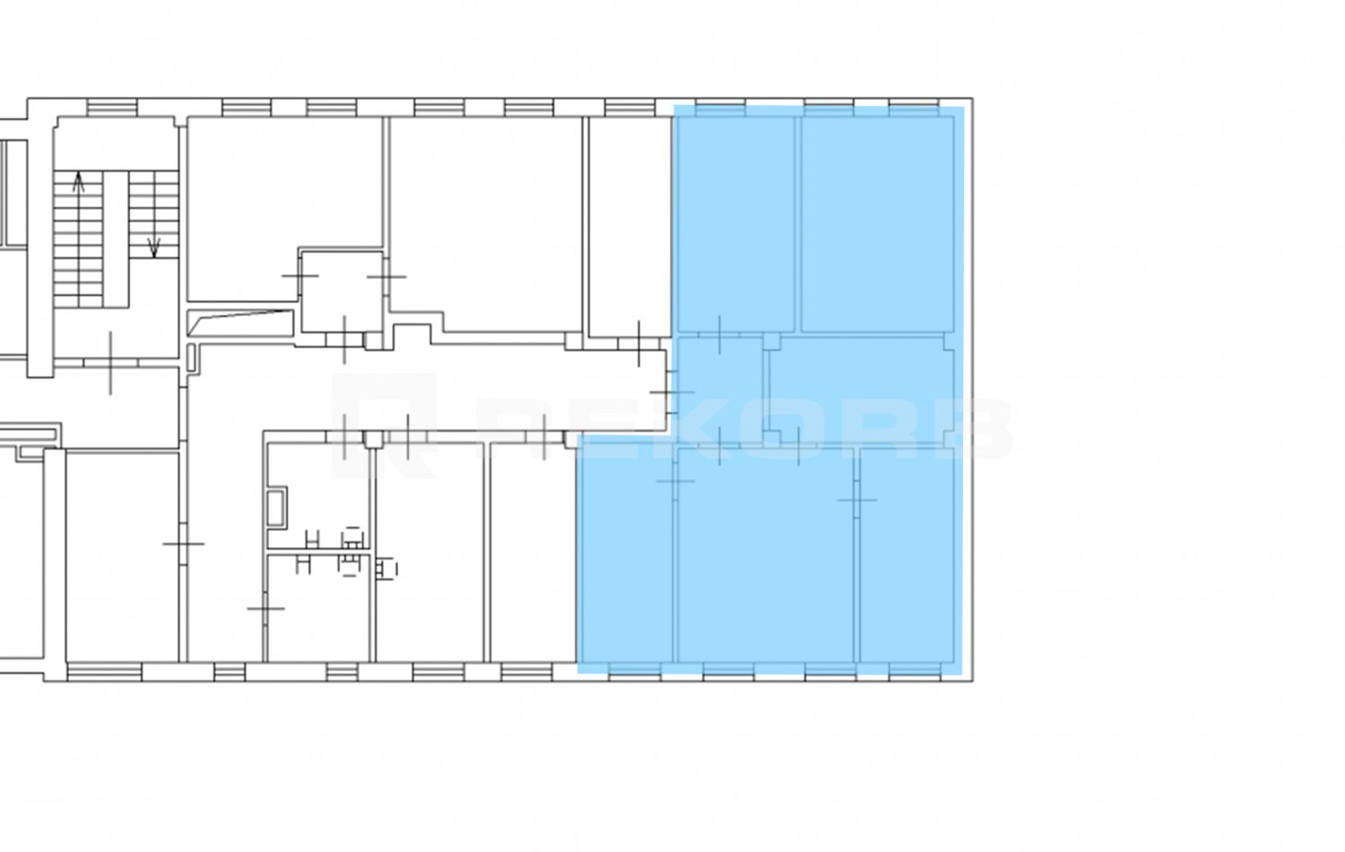
Офис в аренду 110 м2 Помещение №888391

Класс C
Класс БЦ
110 м2
Площадь
2 из 6
Этаж
Open-space
Планировка
Свободно
Статус

БЦ Урал Плаза предлагает в аренду помещение 110 кв.м. на 2 этаже здания класса C. Напрямую от собственника и без комиссии.

Помещение расположено в Василеостровском районе Санкт-Петербурга и находится в непосредственной близости от метро Василеостровская. К зданию также легко добраться на общественном транспорте.

Инфраструктура бизнес-центра: Столовая и Центральная рецепция

Офис 110 м2

  • Коммунальные услуги отдельно
  • Электричество отдельно
  • Уборка оплачивается отдельно
  • OPEX оплачивается отдельно
  • Упрощенная система налогообложения