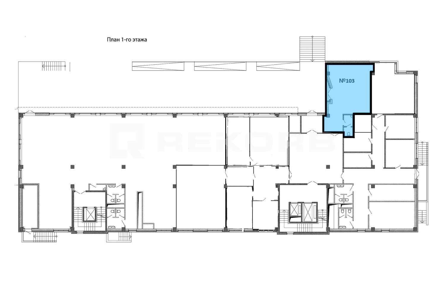
Офис в аренду 52 м2 Помещение №30254

Класс B
Класс БЦ
52 м2
Площадь
1 из 6
Этаж
Отдельный
Вход в помещение
Свободно
Статус

БЦ Варшавский предлагает в аренду помещение 52 кв.м. с отдельным входом на 1 этаже здания класса B. Напрямую от собственника и без комиссии.

Помещение расположено в Московском районе Санкт-Петербурга и находится в непосредственной близости от метро Электросила. При БЦ организован паркинг на 35 машино-мест, к зданию также легко добраться на общественном транспорте.

Инфраструктура бизнес-центра: Кафе

Офис 52 м2

  • Уборка оплачивается отдельно
  • Коммунальные услуги включены
  • Электричество включено
  • OPEX включен в ставку
  • Включая НДС