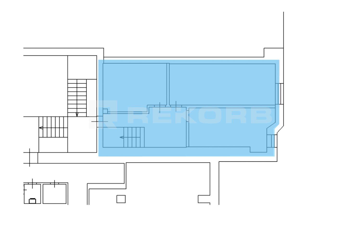
Офис в аренду 90 м2 Помещение №48277

Класс C
Класс БЦ
90 м2
Площадь
3 из 4
Этаж
Кабинетная
Планировка
Свободно
Статус

БЦ Заозерная Технопарк предлагает в аренду помещение 90 кв.м. на 3 этаже здания класса C. Напрямую от собственника и без комиссии.

Помещение расположено в Московском районе Санкт-Петербурга и находится в непосредственной близости от метро Технологический институт-I. При БЦ организован паркинг на 60 машино-мест, к зданию также легко добраться на общественном транспорте.

Инфраструктура бизнес-центра: Кафе

Офис 90 м2

  • Коммунальные услуги отдельно
  • Электричество отдельно
  • Уборка оплачивается отдельно
  • OPEX оплачивается отдельно
  • Включая НДС