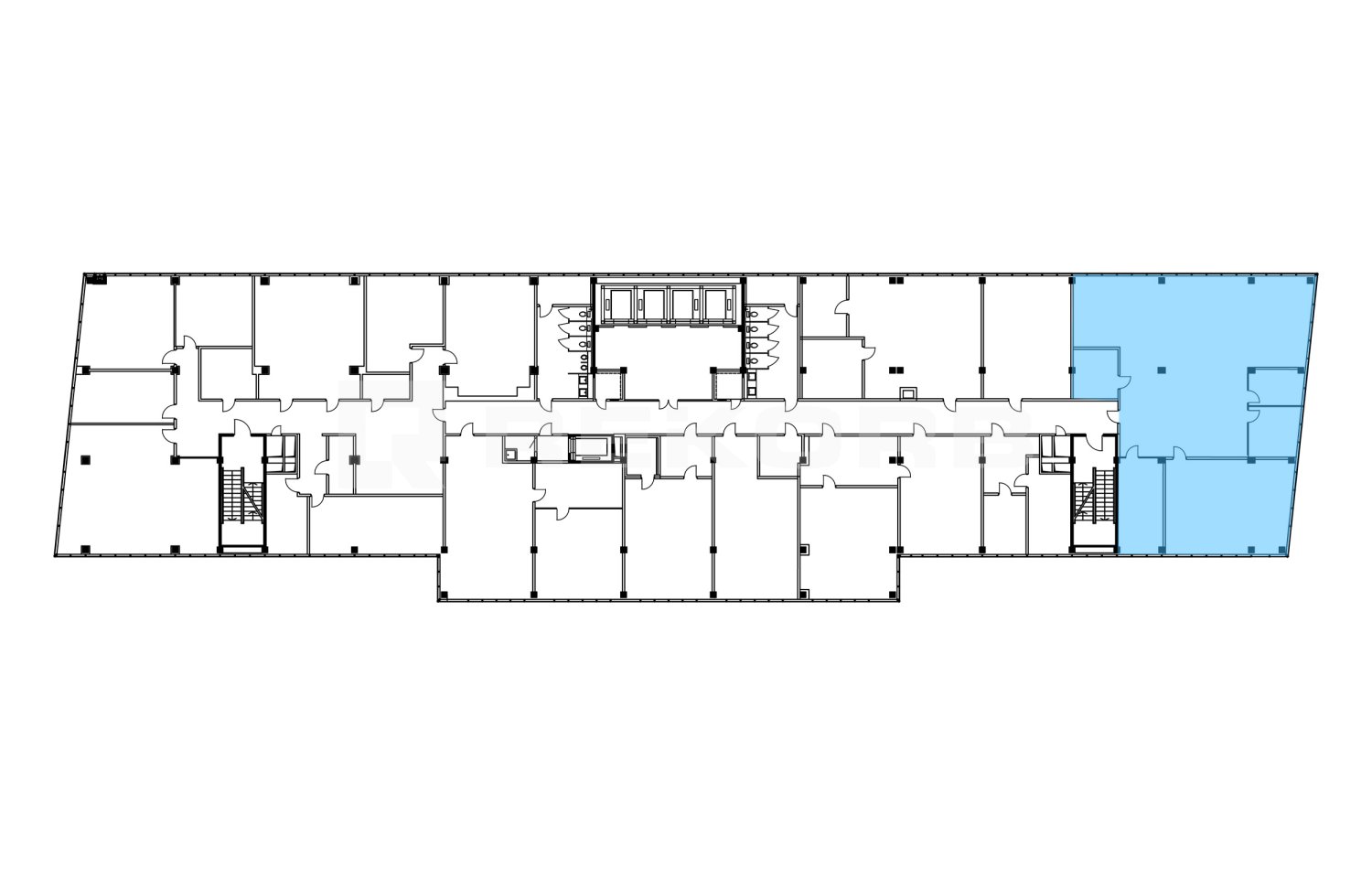
Офис в аренду 248 м2 Помещение №1137016

Класс A
Класс БЦ
248 м2
Площадь
6 из 7
Этаж
Open-space
Планировка
Свободно
Статус

БЦ Зима предлагает в аренду помещение 248 кв.м. на 6 этаже здания класса A. Напрямую от собственника и без комиссии.

Помещение расположено в Калининском районе Санкт-Петербурга и находится в непосредственной близости от метро Площадь Ленина. При БЦ организован паркинг на 1210 машино-мест, к зданию также легко добраться на общественном транспорте.

Инфраструктура бизнес-центра: Банкомат, Кафе, Ресторан, Центральная рецепция и Отделение банка