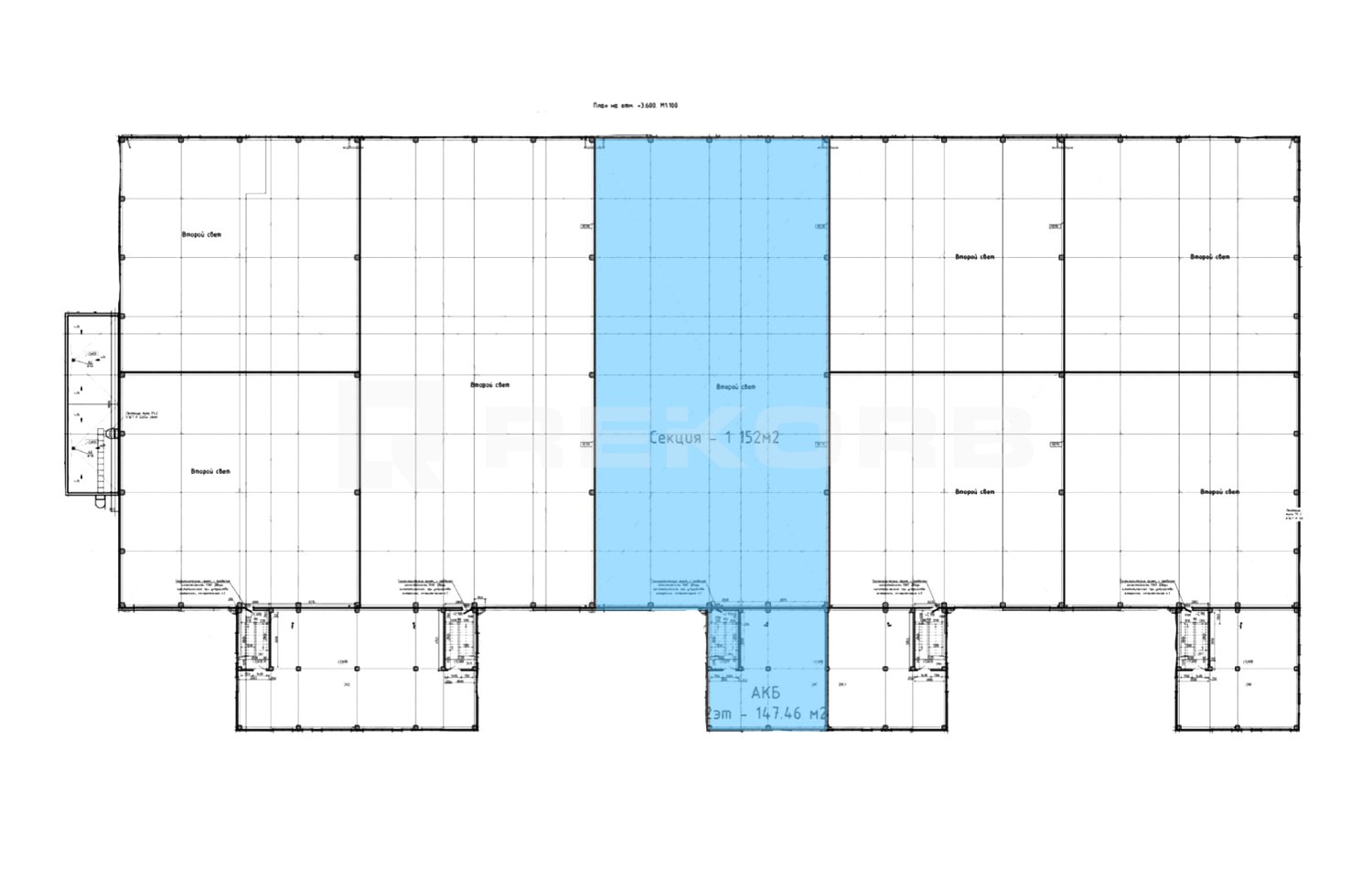
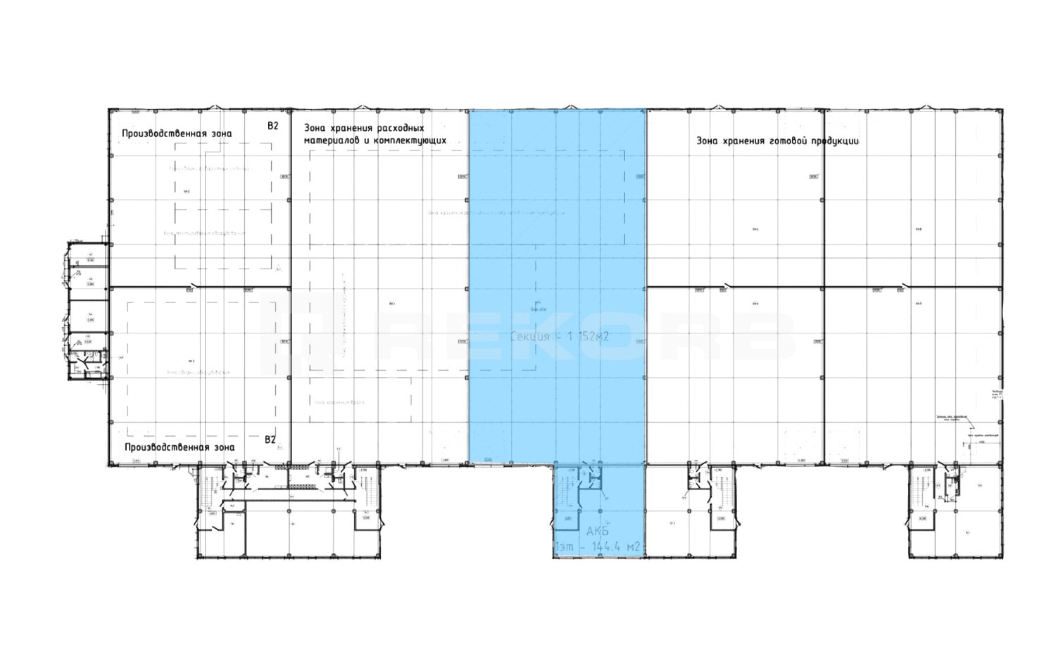
Склад в аренду 1 596 м2 Помещение №728100

1 596 м2
Площадь
1, 2 из 1
Этажи
Cтроительство
Статус

Склад Киевское-95 предлагает в аренду складское помещение 1 596 кв.м. Напрямую от собственника и без комиссии.

Помещение расположено в Ленинградской области и находится в непосредственной близости от крупных транспортных магистралей.

Склад 1 596 м2

  • Коммунальные услуги отдельно
  • Электричество отдельно
  • Уборка оплачивается отдельно
  • OPEX оплачивается отдельно
  • Включая НДС