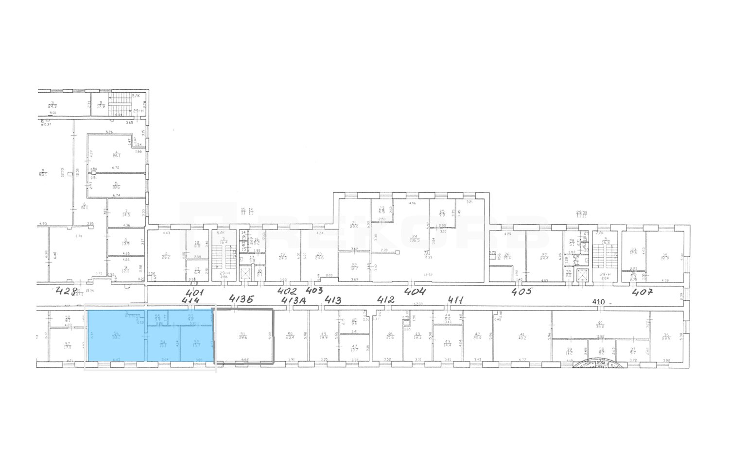
Офис в аренду 82 м2 Помещение №5266

Класс C
Класс БЦ
82 м2
Площадь
4 из 7
Этаж
Кабинетная
Планировка
14.07.2026 г.
Дата освобождения

БЦ Бабушкина 3 предлагает в аренду помещение 82 кв.м. на 4 этаже здания класса C. Напрямую от собственника и без комиссии.

Помещение расположено в Невском районе Санкт-Петербурга и находится в непосредственной близости от метро Елизаровская. При БЦ организован паркинг на 70 машино-мест, к зданию также легко добраться на общественном транспорте.

Инфраструктура бизнес-центра: Кафе и Конференц-зал

Офис 82 м2

  • Электричество отдельно
  • Уборка оплачивается отдельно
  • Коммунальные услуги включены
  • OPEX включен в ставку
  • Включая НДС