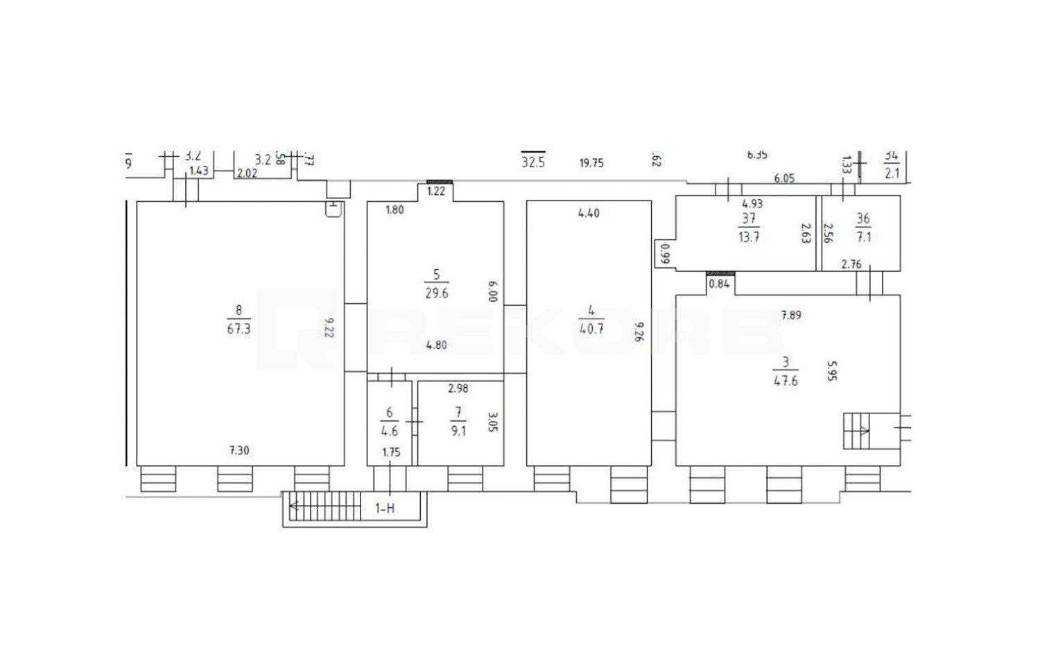
Офис в аренду 211 м2 Помещение №1125098

Класс B
Класс БЦ
211 м2
Площадь
1 из 5
Этаж
Кабинетная
Планировка
Свободно
Статус

БЦ Чайковского 29 предлагает в аренду помещение 211 кв.м. на 1 этаже здания класса B. Напрямую от собственника и без комиссии.

Помещение расположено в Центральном районе Санкт-Петербурга и находится в непосредственной близости от метро Чернышевская. При БЦ организован паркинг на 25 машино-мест, к зданию также легко добраться на общественном транспорте.

Инфраструктура бизнес-центра: Кафе и Конференц-зал

Офис 211 м2

  • Коммунальные услуги отдельно
  • Электричество отдельно
  • Уборка оплачивается отдельно
  • OPEX включен в ставку
  • Включая НДС