Бизнес-центр «Лиговский 78»

Класс B
Класс БЦ
2017
Дата постройки
3 062 м2
Общая площадь
8 этажей
Этажность
  • Местное кондиционирование
  • Приточно-вытяжная вентиляция
Санкт-Петербург, Лиговский пр. д. 78, к. 2, лит. А
Центральный район, ИФНС №11
  • Лиговский проспект
    3 минуты пешком
  • Владимирская
    16 минут пешком

Характеристики

Класс B
Общая площадь 3 062 м2
Арендопригодная площадь 2 450 м2
Дата постройки 2017 г.
ИФНС №11
Этажность 8 эт.
Пассажирские лифты 2
Кондиционирование Местное
Вентиляция Приточно-вытяжная
Электроснабжение 2 категория
Провайдеры а такжеСмарт Телеком
Инфраструктура Кафе, Магазины, Банкомат
Высота потолков 2,7 м

Аналитический обзор рынка

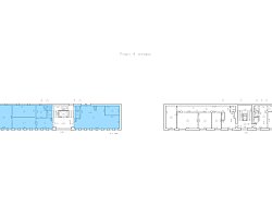
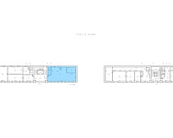
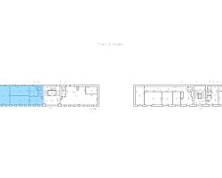
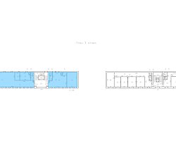
История арендыБЦ «Лиговский 78»

Рекомендуем также помещения в других БЦ

А что делать, если не найти идеальный офис?

Мы готовы вам помочь!

Выберите критерии интересующего вас помещения. Наши специалисты в ближайшее время направят вам список объектов, максимально подходящих под параметры поиска, с полной коммерческой информацией. Заказать подбор офиса