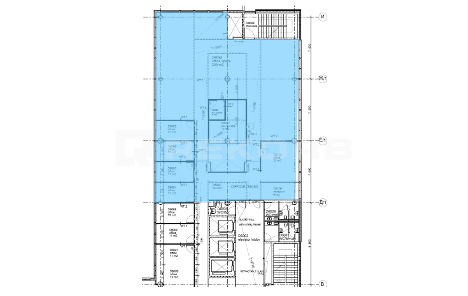
Офис в аренду 346 м2 Помещение №842724

Класс A
Класс БЦ
346 м2
Общая площадь
6 из 8
Этаж
Смешанная
Планировка
Свободно
Статус
Записаться на просмотр
Санкт-Петербург, Московский район, Пулковское шоссе д. 40, к. 4
  • Московская
    20 минут на транспорте

Условия

  • Коммунальные услуги включены
  • Электричество оплачивается отдельно
  • Уборка оплачивается отдельно
  •  
  • OPEX включены
  • Включая НДС

Описание

БЦ NOBIUS предлагает в аренду помещение 346 кв.м. на 6 этаже здания класса A. Напрямую от собственника и без комиссии.

Помещение расположено в Московском районе Санкт-Петербурга и находится в непосредственной близости от метро Московская. При БЦ организован паркинг на 800 машино-мест, к зданию также легко добраться на общественном транспорте.

Развитая инфраструктура бизнес-центра предусматривает:

Характеристики

Класс A
Общая площадь 43 115 м2
Дата постройки 2010 г.
ИФНС №23
Этажность 8 эт.
Паркинг 800 м.м.
Пассажирские лифты 12
Кондиционирование Центральное
Вентиляция Охлаждающие балки
Развозка В течение дня
Провайдеры а такжеМТС, Билайн
Инфраструктура Банкомат, Кафе, Ресторан, Конференц-зал, Столовая, Центральная рецепция, Отделение банка