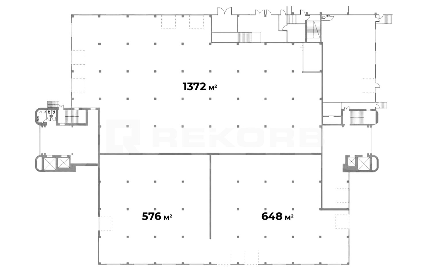
Склад в аренду 2 596 м2 Помещение №1134050

2 596 м2
Площадь
1 из 3
Этаж

Склад Реформа предлагает в аренду складское помещение 2 596 кв.м. Напрямую от собственника и без комиссии.

Помещение расположено в Ленинградской области и находится в непосредственной близости от крупных транспортных магистралей.

Склад 2 596 м2

  • Электричество отдельно
  • Уборка оплачивается отдельно
  • Коммунальные услуги включены
  • OPEX включен в ставку
  • Включая НДС